HOME
>
エリアから探す
>
新宿区
>
神楽坂
>
THE PORTAL iidabashi (旧:36山京ビル)
>
THE PORTAL iidabashi (旧:36山京ビル) 2階東区画
当社貸主物件
セットアップオフィス
キャンペーン実施中
新耐震
THE PORTAL iidabashi (旧:36山京ビル)
2階東区画(東京都新宿区新小川町)
当社貸主物件
セットアップオフィス
キャンペーン実施中
新耐震
THE PORTAL iidabashi (旧:36山京ビル)
2階東区画(東京都新宿区新小川町)
- 賃料(坪単価):
- 2,908,000円(@25,000円)
- 共益費(坪単価)
- :
- 賃料に含む (@―)
- 預託金(保証金/敷金)
- :
- 23,264,000円(8ヶ月)
- 面積
- :
- 116.32坪 (384.54m²)
- 所在地
- :
- 東京都新宿区新小川町8-30
- 最寄駅
- :
-
飯田橋駅まで徒歩7分
飯田橋駅まで徒歩7分
飯田橋駅まで徒歩8分
飯田橋駅まで徒歩9分
飯田橋駅まで徒歩10分
スタッフコメント
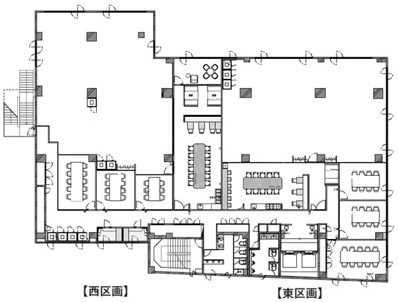
★当社貸主物件のため仲介手数料不要★ 千代田区と新宿区に跨る飯田橋エリアの立地に約100坪前後のデザイナーズセットアップオフィスが誕生しました。JR中央・総武線各駅停車・東京メトロ南北線・有楽町線・東西線・都営大江戸線と、複数路線利用可能な【飯田橋駅】が最寄り駅となり、従業員様、来客者様にとっても便利な立地です。 貸室内には受付・執務室・会議室・テレカンブース(個室集中ブース)・ラウンジスペース・打合せスペースを設け、自由度高く働ける空間となります。執務室を除きオフィス家具も設置した状態でお引渡しとなります。セットアップ物件であるため、内装工事期間を圧縮でき、スピード感をもって業務を開始できます。またデザイン性の高い物件はリクルートにも強く、新しい仲間との出会いのオフィスとなるでしょう。是非一度ご内見ください!
担当:並木 麻由美 支店:麹町店 更新日:2026年4月11日
物件情報
所在地・アクセス
- 物件名
- THE PORTAL iidabashi (旧:36山京ビル) 2階東区画
- 所在地
- 東京都新宿区新小川町8-30
- 最寄駅
-
東京メトロ有楽町線 飯田橋駅まで徒歩7分
都営大江戸線 飯田橋駅まで徒歩7分
東京メトロ南北線 飯田橋駅まで徒歩8分
東京メトロ東西線 飯田橋駅まで徒歩9分
JR中央線 飯田橋駅まで徒歩10分
賃貸条件
- 賃料(坪単価)
- 2,908,000円(@25,000円)
- 礼 金
- 無
- 共益費(坪単価)
- 賃料に含む(@―)
- 面 積
- 116.32坪 (384.54m²)
- 賃料+共益費(坪単価)
- 2,908,000円 (@25,000円)
- 償 却
- 無
- 預託金(保証金/敷金)
- 23,264,000円(8ヶ月)
- 入居可能日
- 即日
- 更新料(再契約料)
- 無
- 契約期間
- 2年
物件概要
- 特 徴
- 構 造
- 鉄筋コンクリート造/新耐震
- 物件タイプ
- 事務所
- 規 模
- 地下2階付4階建
- 取引態様
- 貸主
- 竣 工
- 1991年10月
- 設 備
-
E V :2基(11人乗)、天井高:―㎜、床仕様:―、空調:個別空調、トイレ:共用 男女別 洋式
その他:機械警備、EV不停止機能付、エントランスセキュリティ
- 備 考
-
■2026年2月、内装造作付きセットアップ工事完了 ■貸室面積には、トイレ・給湯室等の面積が含まれます。 ■貸主指定の清掃会社と貸室内の清掃契約を締結していただきます。 ■エントランス開放時間:平日土8:00~22:00、日祝Close ※左記時間帯以外はセキュリティカード利用により24時間入退館可能 ■SFビルサポート株式会社と保証委託契約を締結していただきます。※与信状況によって預託金額が変動する場合がございます。
注) 上記の価格には、別途、消費税及び地方消費税が課されます。
消費税率が変更された場合には、以後、変更後の税率が課されることとなります。
物件情報更新日:2026-04-10
お気軽にお問合せください
キャンペーン実施中。詳細はお問合せ下さい。
この物件のお問合せ現在募集中の区画
- 階数
- 面積
- 賃料
- 共益費
- 間取図
- HOME
- >
- エリアから探す
- >
- 新宿区
- >
- 神楽坂
- >
- THE PORTAL iidabashi (旧:36山京ビル)
- >
- THE PORTAL iidabashi (旧:36山京ビル) 2階東区画
