新耐震
恵比寿ビル
9階(東京都渋谷区東)
新耐震
恵比寿ビル
9階(東京都渋谷区東)
- 賃料(坪単価):
- 相談(@―)
- 共益費(坪単価)
- :
- 賃料に含む (@―)
- 預託金(保証金/敷金)
- :
- ―(相談)
- 面積
- :
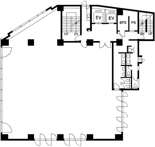
- 85.30坪 (281.99m²)
- 所在地
- :
- 東京都渋谷区東3-11-10
- 最寄駅
- :
-
恵比寿駅まで徒歩5分
恵比寿駅まで徒歩5分
恵比寿駅まで徒歩5分
代官山駅まで徒歩10分
物件情報
所在地・アクセス
- 物件名
- 恵比寿ビル 9階
- 所在地
- 東京都渋谷区東3-11-10
- 最寄駅
-
JR山手線 恵比寿駅まで徒歩5分
東京メトロ日比谷線 恵比寿駅まで徒歩5分
JR埼京線 恵比寿駅まで徒歩5分
東急東横線 代官山駅まで徒歩10分
賃貸条件
- 賃料(坪単価)
- 相談(@―)
- 礼 金
- 無
- 共益費(坪単価)
- 賃料に含む(@―)
- 面 積
- 85.30坪 (281.99m²)
- 賃料+共益費(坪単価)
- 相談 (@―)
- 償 却
- 無
- 預託金(保証金/敷金)
- ―(相談)
- 入居可能日
- 2026年5月1日予定
- 更新料(再契約料)
- 無
- 契約期間
- 年相談
物件概要
- 特 徴
- 構 造
- 鉄骨鉄筋コンクリート造/新耐震
- 物件タイプ
- 事務所
- 規 模
- 地下2階付9階建
- 取引態様
- 一般媒介
- 竣 工
- 1992年10月
- 設 備
-
E V :2基(11人乗、9人乗)、天井高:2560㎜、床仕様:OAフロア、空調:個別空調、トイレ:共用 男女別 洋式
その他:機械警備、駐車場設備あり
- 備 考
-
※契約は㎡単位となります。 ■貸室面積には、トイレ・給湯室等の面積は含まれません。 ■床荷重:300㎏/㎡ ■コンセント容量:30VA/㎡
注) 上記の価格には、別途、消費税及び地方消費税が課されます。
消費税率が変更された場合には、以後、変更後の税率が課されることとなります。
物件情報更新日:2025-11-26
お気軽にお問合せください
現在募集中の区画
- 階数
- 面積
- 賃料
- 共益費
- 間取図
- HOME
- >
- エリアから探す
- >
- 渋谷区
- >
- 恵比寿・代官山・広尾
- >
- 恵比寿ビル
- >
- 恵比寿ビル 9階
