日本プレスセンタービル
6階北西区画(東京都千代田区内幸町)
日本プレスセンタービル
6階北西区画(東京都千代田区内幸町)
- 賃料(坪単価):
- 相談(@―)
- 共益費(坪単価)
- :
- 76,970円 (@4,300円)
- 預託金(保証金/敷金)
- :
- 備考参照(―)
- 面積
- :
- 17.90坪 (59.16m²)
- 所在地
- :
- 東京都千代田区内幸町2-2-1
- 最寄駅
- :
-
内幸町駅まで徒歩2分
霞ヶ関駅まで徒歩2分
虎ノ門駅まで徒歩6分
日比谷駅まで徒歩7分
新橋駅まで徒歩9分
物件情報
所在地・アクセス
- 物件名
- 日本プレスセンタービル 6階北西区画
- 所在地
- 東京都千代田区内幸町2-2-1
- 最寄駅
-
都営三田線 内幸町駅まで徒歩2分
東京メトロ千代田線 霞ヶ関駅まで徒歩2分
東京メトロ銀座線 虎ノ門駅まで徒歩6分
東京メトロ千代田線 日比谷駅まで徒歩7分
JR山手線 新橋駅まで徒歩9分
賃貸条件
- 賃料(坪単価)
- 相談(@―)
- 礼 金
- 無
- 共益費(坪単価)
- 76,970円(@4,300円)
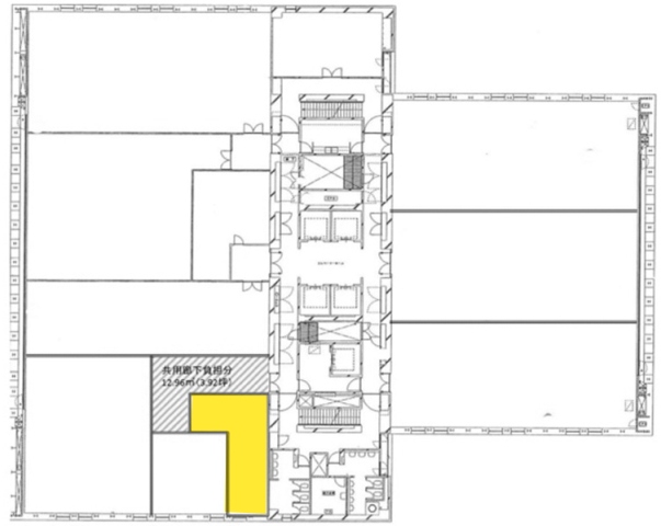
- 面 積
- 17.90坪 (59.16m²)
- 賃料+共益費(坪単価)
- 相談 (@―)
- 償 却
- 無
- 預託金(保証金/敷金)
- 備考参照(―)
- 入居可能日
- 即日
- 更新料(再契約料)
- 無
- 契約期間
- 3年(定借)
物件概要
- 特 徴
- 構 造
- SRC・一部S造コンクリート造
- 物件タイプ
- 事務所
- 規 模
- 地下3階付11階建
- 取引態様
- 一般媒介
- 竣 工
- 1976年7月
- 設 備
-
E V :5基、天井高:2600㎜、床仕様:OAフロア、空調:個別空調、トイレ:共用 男女別 洋式
その他:有人警備、駐車場設備あり
- 備 考
-
■貸室面積には、共用部の面積(3.92坪)が含まれます。 ■床荷重:300㎏/㎡ ■電気容量:40VA/㎡(増設可能) ■EV⇒乗用:4基(20人乗)、非常用:1基(17人乗) ■保証金:賃料+共益費+空調費の10ヶ月分 ■空調費:月額25,955円(坪単価1,450円) ■清掃費:月額14,320円(坪単価800円) ■空調コアタイム:月~土8:30~18:00、日祝休止 ※時間外空調費:2,200円/時間、日祝:7,200円/時間
注) 上記の価格には、別途、消費税及び地方消費税が課されます。
消費税率が変更された場合には、以後、変更後の税率が課されることとなります。
物件情報更新日:2026-04-09
お気軽にお問合せください
現在募集中の区画
- 階数
- 面積
- 賃料
- 共益費
- 間取図
- HOME
- >
- エリアから探す
- >
- 千代田区
- >
- 大手町・丸の内
- >
- 日本プレスセンタービル
- >
- 日本プレスセンタービル 6階北西区画
