当社管理物件
セットアップオフィス
新耐震
Polar 西新宿
2階(東京都新宿区西新宿)
当社管理物件
セットアップオフィス
新耐震
Polar 西新宿
2階(東京都新宿区西新宿)
- 賃料(坪単価):
- 1,784,360円(@31,000円)
- 共益費(坪単価)
- :
- 賃料に含む (@―)
- 預託金(保証金/敷金)
- :
- ―(無)
- 面積
- :
- 57.56坪 (190.30m²)
- 所在地
- :
- 東京都新宿区西新宿7-22-33
- 最寄駅
- :
-
西新宿駅まで徒歩5分
新宿西口駅まで徒歩6分
西武新宿駅まで徒歩7分
新宿駅まで徒歩10分
新宿駅まで徒歩10分
撮影更新日:2023年11月22日
スタッフコメント
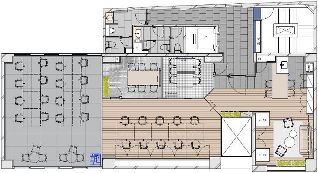
2022年9月にエントランス、同年12月に貸室内リニューアル工事が完了しており、低コスト&短時間で入居可能です!また、会議室や個室ブース、机や椅子も設置しているため、通信環境を用意すればすぐに業務が開始できます。貸室内の環境は、ラウンジエリア・フレキシブルエリア・執務エリアと業務内容やメンバー、気分によって働き方を最適化できるゾーニングとなっております。最寄りは東京メトロ丸ノ内線【西新宿駅】ですが、JR各線【新宿駅】も徒歩圏内と利便性のある物件です。
担当:吉田 裕基 支店:新宿店 更新日:2025年11月13日
物件情報
所在地・アクセス
- 物件名
- Polar 西新宿 2階
- 所在地
- 東京都新宿区西新宿7-22-33
- 最寄駅
-
東京メトロ丸ノ内線 西新宿駅まで徒歩5分
都営大江戸線 新宿西口駅まで徒歩6分
西武新宿線 西武新宿駅まで徒歩7分
JR山手線 新宿駅まで徒歩10分
小田急小田原線 新宿駅まで徒歩10分
賃貸条件
- 賃料(坪単価)
- 1,784,360円(@31,000円)
- 礼 金
- 無
- 共益費(坪単価)
- 賃料に含む(@―)
- 面 積
- 57.56坪 (190.30m²)
- 賃料+共益費(坪単価)
- 1,784,360円 (@31,000円)
- 償 却
- 無
- 預託金(保証金/敷金)
- ―(無)
- 入居可能日
- 2026年5月5日予定
- 更新料(再契約料)
- 無
- 契約期間
- 2年
物件概要
- 特 徴
- 構 造
- 鉄骨鉄筋コンクリート造/新耐震
- 物件タイプ
- 事務所
- 規 模
- 地下1階付5階建
- 取引態様
- 一般媒介
- 竣 工
- 1993年11月
- 設 備
-
E V :1基(11人乗)、天井高:―㎜、床仕様:OAフロア、空調:個別空調、トイレ:専用 男女別 洋式
その他:機械警備
- 備 考
-
■2022年12月、内装造作付セットアップオフィス工事完了! ■原状回復義務なし(現状変更した場合や破損等を除く) ■クリーニング費用をご負担いただきます。(契約時) ■貸主指定の清掃会社と貸室内の清掃契約を締結していただきます。 ■SFビルサポート株式会社と保証委託契約を締結していただきます。 ※与信状況によって敷金の預託をお願いする場合がございます。
注) 上記の価格には、別途、消費税及び地方消費税が課されます。
消費税率が変更された場合には、以後、変更後の税率が課されることとなります。
物件情報更新日:2025-11-12
お気軽にお問合せください
