新耐震基準適合
日本橋本町THビル
4階(東京都中央区日本橋本町)
新耐震基準適合
日本橋本町THビル
4階(東京都中央区日本橋本町)
- 賃料(坪単価):
- 883,485円(@14,500円)
- 共益費(坪単価)
- :
- 152,325円 (@2,500円)
- 預託金(保証金/敷金)
- :
- 8,834,850円(10ヶ月)
- 面積
- :
- 60.93坪 (201.43m²)
- 所在地
- :
- 東京都中央区日本橋本町4-5-13
- 最寄駅
- :
-
新日本橋駅まで徒歩3分
小伝馬町駅まで徒歩6分
神田駅まで徒歩7分
神田駅まで徒歩7分
神田駅まで徒歩7分
物件情報
所在地・アクセス
- 物件名
- 日本橋本町THビル 4階
- 所在地
- 東京都中央区日本橋本町4-5-13
- 最寄駅
-
JR総武線快速 新日本橋駅まで徒歩3分
東京メトロ日比谷線 小伝馬町駅まで徒歩6分
JR山手線 神田駅まで徒歩7分
JR中央線快速 神田駅まで徒歩7分
東京メトロ銀座線 神田駅まで徒歩7分
賃貸条件
- 賃料(坪単価)
- 883,485円(@14,500円)
- 礼 金
- 無
- 共益費(坪単価)
- 152,325円(@2,500円)
- 面 積
- 60.93坪 (201.43m²)
- 賃料+共益費(坪単価)
- 1,035,810円 (@17,000円)
- 償 却
- 賃料の2ヶ月分
- 預託金(保証金/敷金)
- 8,834,850円(10ヶ月)
- 入居可能日
- 2026年5月13日予定
- 更新料(再契約料)
- 新賃料の1ヶ月分
- 契約期間
- 定借
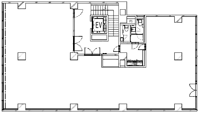
物件概要
- 特 徴
-
- 構 造
- 鉄骨鉄筋コンクリート造/新耐震基準適合
- 物件タイプ
- 事務所
- 規 模
- 地下1階付9階建
- 取引態様
- 一般媒介
- 竣 工
- 1963年3月
- 設 備
-
E V :1基(6人乗)、天井高:2340㎜、床仕様:OAフロア(H=55mm)、空調:個別空調、トイレ: 洋式
その他:機械警備
- 備 考
-
■契約期間:2029年12月末日までの定期建物賃貸借契約となります。 ■引渡し:居抜き相談可能 ■床荷重:300㎏/㎡ ■機械警備料:月額15,000円 ■貸主指定の保証会社をご利用いただけます。
注) 上記の価格には、別途、消費税及び地方消費税が課されます。
消費税率が変更された場合には、以後、変更後の税率が課されることとなります。
物件情報更新日:2026-02-05
お気軽にお問合せください
- HOME
- >
- エリアから探す
- >
- 中央区
- >
- 八重洲・京橋・日本橋
- >
- 日本橋本町THビル
- >
- 日本橋本町THビル 4階
