新耐震
みさきBLD
2階(東京都千代田区神田三崎町)
新耐震
みさきBLD
2階(東京都千代田区神田三崎町)
- 賃料(坪単価):
- 370,350円(@15,000円)
- 共益費(坪単価)
- :
- 無 (@―)
- 預託金(保証金/敷金)
- :
- 2,222,100円(6ヶ月)
- 面積
- :
- 24.69坪 (81.62m²)
- 所在地
- :
- 東京都千代田区神田三崎町3-10-2
- 最寄駅
- :
-
水道橋駅まで徒歩2分
飯田橋駅まで徒歩6分
水道橋駅まで徒歩7分
飯田橋駅まで徒歩8分
飯田橋駅まで徒歩8分
物件情報
所在地・アクセス
- 物件名
- みさきBLD 2階
- 所在地
- 東京都千代田区神田三崎町3-10-2
- 最寄駅
-
JR中央線 水道橋駅まで徒歩2分
東京メトロ南北線 飯田橋駅まで徒歩6分
都営三田線 水道橋駅まで徒歩7分
都営大江戸線 飯田橋駅まで徒歩8分
東京メトロ有楽町線 飯田橋駅まで徒歩8分
賃貸条件
- 賃料(坪単価)
- 370,350円(@15,000円)
- 礼 金
- 賃料の2ヶ月分
- 共益費(坪単価)
- 無(@―)
- 面 積
- 24.69坪 (81.62m²)
- 賃料+共益費(坪単価)
- 370,350円 (@15,000円)
- 償 却
- 無
- 預託金(保証金/敷金)
- 2,222,100円(6ヶ月)
- 入居可能日
- 即日
- 更新料(再契約料)
- 新賃料の1ヶ月分
- 契約期間
- 2年
物件概要
- 特 徴
-
- 構 造
- 鉄筋コンクリート造/新耐震
- 物件タイプ
- 事務所
- 規 模
- 7階建
- 取引態様
- 一般媒介
- 竣 工
- 1990年7月
- 設 備
-
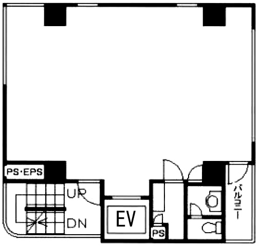
E V :1基、天井高:―㎜、床仕様:タイルカーペット、空調:個別空調、トイレ:専用 男女共用 洋式
その他:機械警備
- 備 考
-
■解約予告:3ヶ月前 ■貸主指定の火災保険にご加入いただきます。 ■貸主指定の保証会社と保証委託契約を締結していただきます。
注) 上記の価格には、別途、消費税及び地方消費税が課されます。
消費税率が変更された場合には、以後、変更後の税率が課されることとなります。
物件情報更新日:2026-04-09
お気軽にお問合せください
- HOME
- >
- エリアから探す
- >
- 千代田区
- >
- 水道橋・飯田橋・神保町
- >
- みさきBLD
- >
- みさきBLD 2階
