EA1ビル (旧:第33東京ビル)
5階(東京都豊島区北大塚)
EA1ビル (旧:第33東京ビル)
5階(東京都豊島区北大塚)
- 賃料(坪単価):
- 436,590円(@13,500円)
- 共益費(坪単価)
- :
- 80,850円 (@2,500円)
- 預託金(保証金/敷金)
- :
- 4,365,900円(10ヶ月)
- 面積
- :
- 32.34坪 (106.90m²)
- 所在地
- :
- 東京都豊島区北大塚2-7-9
- 最寄駅
- :
-
大塚駅まで徒歩3分
大塚前駅まで徒歩3分
巣鴨新田駅まで徒歩5分
新大塚駅まで徒歩12分
巣鴨駅まで徒歩15分
物件情報
所在地・アクセス
- 物件名
- EA1ビル (旧:第33東京ビル) 5階
- 所在地
- 東京都豊島区北大塚2-7-9
- 最寄駅
-
JR山手線 大塚駅まで徒歩3分
東京さくらトラム(都電荒川線) 大塚前駅まで徒歩3分
東京さくらトラム(都電荒川線) 巣鴨新田駅まで徒歩5分
東京メトロ丸ノ内線 新大塚駅まで徒歩12分
都営三田線 巣鴨駅まで徒歩15分
賃貸条件
- 賃料(坪単価)
- 436,590円(@13,500円)
- 礼 金
- 無
- 共益費(坪単価)
- 80,850円(@2,500円)
- 面 積
- 32.34坪 (106.90m²)
- 賃料+共益費(坪単価)
- 517,440円 (@16,000円)
- 償 却
- 賃料の2ヶ月分
- 預託金(保証金/敷金)
- 4,365,900円(10ヶ月)
- 入居可能日
- 2026年11月15日予定
- 更新料(再契約料)
- ―
- 契約期間
- 5年(定借)
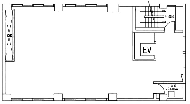
物件概要
- 特 徴
-
- 構 造
- 鉄筋コンクリート造
- 物件タイプ
- 店舗・事務所
- 規 模
- 地下1階付6階建
- 取引態様
- 一般媒介
- 竣 工
- 1978年5月
- 設 備
-
E V :1基、天井高:―㎜、床仕様:―、空調:―、トイレ:―
- 備 考
-
■スケルトン渡し ■貸主指定の保証会社と保証委託契約を締結していただきます。
注) 上記の価格には、別途、消費税及び地方消費税が課されます。
消費税率が変更された場合には、以後、変更後の税率が課されることとなります。
物件情報更新日:2026-04-27
お気軽にお問合せください
- HOME
- >
- エリアから探す
- >
- 豊島区
- >
- 大塚・巣鴨・駒込
- >
- EA1ビル (旧:第33東京ビル)
- >
- EA1ビル (旧:第33東京ビル) 5階
