新耐震
VORT浅草江戸通り
6階(東京都台東区雷門)
新耐震
VORT浅草江戸通り
6階(東京都台東区雷門)
- 賃料(坪単価):
- 相談(@―)
- 共益費(坪単価)
- :
- 相談 (@―)
- 預託金(保証金/敷金)
- :
- 相談(―)
- 面積
- :
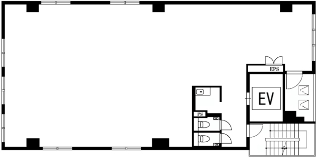
- 47.64坪 (157.52m²)
- 所在地
- :
- 東京都台東区雷門2-19-16
- 最寄駅
- :
-
浅草駅まで徒歩1分
浅草駅まで徒歩1分
蔵前駅まで徒歩8分
田原町駅まで徒歩9分
浅草駅まで徒歩10分
物件情報
所在地・アクセス
- 物件名
- VORT浅草江戸通り 6階
- 所在地
- 東京都台東区雷門2-19-16
- 最寄駅
-
東京メトロ銀座線 浅草駅まで徒歩1分
都営浅草線 浅草駅まで徒歩1分
都営大江戸線 蔵前駅まで徒歩8分
東京メトロ銀座線 田原町駅まで徒歩9分
つくばエクスプレス 浅草駅まで徒歩10分
賃貸条件
- 賃料(坪単価)
- 相談(@―)
- 礼 金
- 相談
- 共益費(坪単価)
- 相談(@―)
- 面 積
- 47.64坪 (157.52m²)
- 賃料+共益費(坪単価)
- 相談 (@―)
- 償 却
- 相談
- 預託金(保証金/敷金)
- 相談(―)
- 入居可能日
- 相談
- 更新料(再契約料)
- 相談
- 契約期間
- 相談
物件概要
- 特 徴
- 構 造
- 鉄骨造/新耐震
- 物件タイプ
- 店舗・事務所
- 規 模
- 9階建
- 取引態様
- 一般媒介
- 竣 工
- 2025年1月
- 設 備
-
E V :1基、天井高:3070㎜、床仕様:OAフロア(H=50mm)、空調:個別空調、トイレ:専用 男女別 洋式
- 備 考
- お問い合わせください。
物件情報更新日:2026-01-07
お気軽にお問合せください
現在募集中の区画
- 階数
- 面積
- 賃料
- 共益費
- 間取図
- HOME
- >
- エリアから探す
- >
- 台東区
- >
- 浅草・蔵前・浅草橋
- >
- VORT浅草江戸通り
- >
- VORT浅草江戸通り 6階
