当社管理物件
新耐震
エスラ原宿ビル
4階(東京都渋谷区神宮前)
当社管理物件
新耐震
エスラ原宿ビル
4階(東京都渋谷区神宮前)
- 賃料(坪単価):
- 相談(@―)
- 共益費(坪単価)
- :
- 無 (@―)
- 預託金(保証金/敷金)
- :
- ―(無)
- 面積
- :
- 57.30坪 (189.43m²)
- 所在地
- :
- 東京都渋谷区神宮前3-25-14
- 最寄駅
- :
-
明治神宮前駅まで徒歩6分
明治神宮前駅まで徒歩6分
原宿駅まで徒歩7分
北参道駅まで徒歩9分
外苑前駅まで徒歩13分
物件情報
所在地・アクセス
- 物件名
- エスラ原宿ビル 4階
- 所在地
- 東京都渋谷区神宮前3-25-14
- 最寄駅
-
東京メトロ千代田線 明治神宮前駅まで徒歩6分
東京メトロ副都心線 明治神宮前駅まで徒歩6分
JR山手線 原宿駅まで徒歩7分
東京メトロ副都心線 北参道駅まで徒歩9分
東京メトロ銀座線 外苑前駅まで徒歩13分
賃貸条件
- 賃料(坪単価)
- 相談(@―)
- 礼 金
- 無
- 共益費(坪単価)
- 無(@―)
- 面 積
- 57.30坪 (189.43m²)
- 賃料+共益費(坪単価)
- 相談 (@―)
- 償 却
- 無
- 預託金(保証金/敷金)
- ―(無)
- 入居可能日
- 即日
- 更新料(再契約料)
- 無
- 契約期間
- 3年(定借)
物件概要
- 特 徴
- 構 造
- 鉄骨鉄筋コンクリート造/新耐震
- 物件タイプ
- 事務所
- 規 模
- 8階建
- 取引態様
- 一般媒介
- 竣 工
- 1984年11月
- 設 備
-
E V :1基、天井高:3,050mm(梁下有効2,525mm)㎜、床仕様:OAフロア(H=50mm、有効=40mm)、空調:個別空調、トイレ:専用 男女別
その他:機械警備
- 備 考
-
■内装・家具付オフィス ※原状回復工事不要 ■電源容量:67VA/㎡ ■解約予告:6ヶ月前 ■貸主指定の保証会社と保証委託契約を締結していただきます。 ※締結いただかない場合、敷金は賃料の6ヶ月分となります。
注) 上記の価格には、別途、消費税及び地方消費税が課されます。
消費税率が変更された場合には、以後、変更後の税率が課されることとなります。
物件情報更新日:2026-05-22
お気軽にお問合せください
現在募集中の区画
- 階数
- 面積
- 賃料
- 共益費
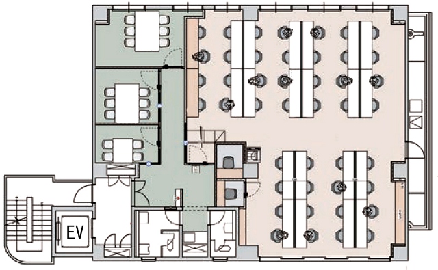
- 間取図
