新耐震
(仮称)国立駅前テナントビル
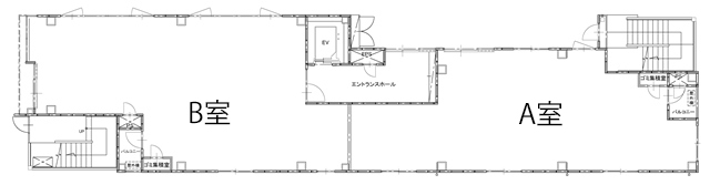
1階B室(東京都国立市中)
新耐震
(仮称)国立駅前テナントビル
1階B室(東京都国立市中)
- 賃料(坪単価):
- 相談(@―)
- 共益費(坪単価)
- :
- 相談 (@―)
- 預託金(保証金/敷金)
- :
- ―(相談)
- 面積
- :
- 29.31坪 (96.894m²)
- 所在地
- :
- 東京都国立市中1-8(枝番未定)
- 最寄駅
- :
-
国立駅まで徒歩3分
物件情報
所在地・アクセス
- 物件名
- (仮称)国立駅前テナントビル 1階B室
- 所在地
- 東京都国立市中1-8(枝番未定)
- 最寄駅
-
JR中央線快速 国立駅まで徒歩3分
賃貸条件
- 賃料(坪単価)
- 相談(@―)
- 礼 金
- 相談
- 共益費(坪単価)
- 相談(@―)
- 面 積
- 29.31坪 (96.894m²)
- 賃料+共益費(坪単価)
- 相談 (@―)
- 償 却
- 相談
- 預託金(保証金/敷金)
- ―(相談)
- 入居可能日
- 2026年11月下旬予定
- 更新料(再契約料)
- 相談
- 契約期間
- 年相談(定借)
物件概要
- 特 徴
- 構 造
- 鉄骨造/新耐震
- 物件タイプ
- 店舗
- 規 模
- 5階建
- 取引態様
- 一般媒介
- 竣 工
- 2026年7月
- 設 備
-
E V :1基(9人乗)、天井高:―㎜、床仕様:―、空調:なし、トイレ:なし
- 備 考
-
■スケルトン渡し ■任意の産業廃棄物業者と契約を締結していただきます。
注) 上記の価格には、別途、消費税及び地方消費税が課されます。
消費税率が変更された場合には、以後、変更後の税率が課されることとなります。
物件情報更新日:2026-05-12
お気軽にお問合せください
現在募集中の区画
- 階数
- 面積
- 賃料
- 共益費
- 間取図
- HOME
- >
- エリアから探す
- >
- その他
- >
- その他
- >
- (仮称)国立駅前テナントビル
- >
- (仮称)国立駅前テナントビル 1階B室
