新耐震
五反田佑気ビル
3階(東京都品川区西五反田)
新耐震
五反田佑気ビル
3階(東京都品川区西五反田)
- 賃料(坪単価):
- 相談(@―)
- 共益費(坪単価)
- :
- 賃料に含む (@―)
- 預託金(保証金/敷金)
- :
- ―(相談)
- 面積
- :
- 72.60坪 (240.00m²)
- 所在地
- :
- 東京都品川区西五反田8-2-8
- 最寄駅
- :
-
大崎広小路駅まで徒歩3分
五反田駅まで徒歩7分
五反田駅まで徒歩7分
五反田駅まで徒歩7分
大崎駅まで徒歩11分
物件情報
所在地・アクセス
- 物件名
- 五反田佑気ビル 3階
- 所在地
- 東京都品川区西五反田8-2-8
- 最寄駅
-
東急池上線 大崎広小路駅まで徒歩3分
JR山手線 五反田駅まで徒歩7分
都営浅草線 五反田駅まで徒歩7分
東急池上線 五反田駅まで徒歩7分
JR埼京線 大崎駅まで徒歩11分
賃貸条件
- 賃料(坪単価)
- 相談(@―)
- 礼 金
- 無
- 共益費(坪単価)
- 賃料に含む(@―)
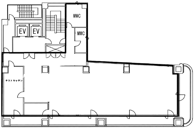
- 面 積
- 72.60坪 (240.00m²)
- 賃料+共益費(坪単価)
- 相談 (@―)
- 償 却
- 無
- 預託金(保証金/敷金)
- ―(相談)
- 入居可能日
- 即日
- 更新料(再契約料)
- 無
- 契約期間
- 2年
物件概要
- 特 徴
- 構 造
- 鉄骨鉄筋コンクリート造/新耐震
- 物件タイプ
- 事務所
- 規 模
- 地下1階付10階建
- 取引態様
- 一般媒介
- 竣 工
- 1991年7月
- 設 備
-
E V :2基(11人乗)、天井高:2,420mm(一部2,230mm)㎜、床仕様:タイルカーペット、空調:個別空調、トイレ:専用 男女別 洋式
その他:機械警備
- 備 考
-
■貸室面積には、トイレ・給湯室等の面積が含まれます。
注) 上記の価格には、別途、消費税及び地方消費税が課されます。
消費税率が変更された場合には、以後、変更後の税率が課されることとなります。
物件情報更新日:2026-03-02
お気軽にお問合せください
