セットアップオフィス
新耐震
GLOWTHIA東日本橋 (旧:東日本橋オリモビル)
2階(東京都中央区東日本橋)
セットアップオフィス
新耐震
GLOWTHIA東日本橋 (旧:東日本橋オリモビル)
2階(東京都中央区東日本橋)
- 賃料(坪単価):
- 相談(@―)
- 共益費(坪単価)
- :
- 賃料に含む (@―)
- 預託金(保証金/敷金)
- :
- ―(6ヶ月)
- 面積
- :
- 26.59坪 (87.90m²)
- 所在地
- :
- 東京都中央区東日本橋2-2-10
- 最寄駅
- :
-
東日本橋駅まで徒歩2分
馬喰町駅まで徒歩3分
馬喰横山駅まで徒歩5分
浅草橋駅まで徒歩7分
浜町駅まで徒歩7分
物件情報
所在地・アクセス
- 物件名
- GLOWTHIA東日本橋 (旧:東日本橋オリモビル) 2階
- 所在地
- 東京都中央区東日本橋2-2-10
- 最寄駅
-
都営浅草線 東日本橋駅まで徒歩2分
JR総武線快速 馬喰町駅まで徒歩3分
都営新宿線 馬喰横山駅まで徒歩5分
JR中央線 浅草橋駅まで徒歩7分
都営新宿線 浜町駅まで徒歩7分
賃貸条件
- 賃料(坪単価)
- 相談(@―)
- 礼 金
- 無
- 共益費(坪単価)
- 賃料に含む(@―)
- 面 積
- 26.59坪 (87.90m²)
- 賃料+共益費(坪単価)
- 相談 (@―)
- 償 却
- 無
- 預託金(保証金/敷金)
- ―(6ヶ月)
- 入居可能日
- 即日
- 更新料(再契約料)
- 無
- 契約期間
- 2年
物件概要
- 特 徴
- 構 造
- 鉄筋コンクリート造/新耐震
- 物件タイプ
- 事務所
- 規 模
- 地下1階付6階建
- 取引態様
- 一般媒介
- 竣 工
- 1989年8月
- 設 備
-
E V :1基、天井高:―㎜、床仕様:―、空調:―、トイレ:専用 男女別 洋式
その他:機械警備、EV不停止機能付
- 備 考
-
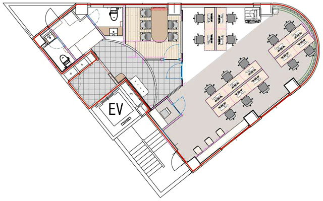
■フルセットアップオフィス ■貸室面積には、トイレ・給湯室等の面積が含まれます。 ■貸主指定の保証会社(日商保)と保証委託契約を締結していただきます。
注) 上記の価格には、別途、消費税及び地方消費税が課されます。
消費税率が変更された場合には、以後、変更後の税率が課されることとなります。
物件情報更新日:2026-01-07
お気軽にお問合せください
現在募集中の区画
- 階数
- 面積
- 賃料
- 共益費
- 間取図
- HOME
- >
- エリアから探す
- >
- 中央区
- >
- 小伝馬町・東日本橋・日本橋浜町
- >
- GLOWTHIA東日本橋 (旧:東日本橋オリモビル)
- >
- GLOWTHIA東日本橋 (旧:東日本橋オリモビル) 2階
