新耐震
フェルテ麹町1・7ビル
6階(東京都千代田区麹町)
新耐震
フェルテ麹町1・7ビル
6階(東京都千代田区麹町)
- 賃料(坪単価):
- 2,917,200円(@30,000円)
- 共益費(坪単価)
- :
- 賃料に含む (@―)
- 預託金(保証金/敷金)
- :
- 17,503,200円(6ヶ月)
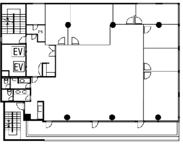
- 面積
- :
- 97.24坪 (321.47m²)
- 所在地
- :
- 東京都千代田区麹町1-7-25
- 最寄駅
- :
-
半蔵門駅まで徒歩3分
麹町駅まで徒歩8分
永田町駅まで徒歩10分
赤坂見附駅まで徒歩14分
赤坂見附駅まで徒歩14分
物件情報
所在地・アクセス
- 物件名
- フェルテ麹町1・7ビル 6階
- 所在地
- 東京都千代田区麹町1-7-25
- 最寄駅
-
東京メトロ半蔵門線 半蔵門駅まで徒歩3分
東京メトロ有楽町線 麹町駅まで徒歩8分
東京メトロ南北線 永田町駅まで徒歩10分
東京メトロ銀座線 赤坂見附駅まで徒歩14分
東京メトロ丸ノ内線 赤坂見附駅まで徒歩14分
賃貸条件
- 賃料(坪単価)
- 2,917,200円(@30,000円)
- 礼 金
- 無
- 共益費(坪単価)
- 賃料に含む(@―)
- 面 積
- 97.24坪 (321.47m²)
- 賃料+共益費(坪単価)
- 2,917,200円 (@30,000円)
- 償 却
- 無
- 預託金(保証金/敷金)
- 17,503,200円(6ヶ月)
- 入居可能日
- 2026年4月6日予定
- 更新料(再契約料)
- 無
- 契約期間
- 3年(定借)
物件概要
- 特 徴
- 構 造
- 鉄骨鉄筋コンクリート造/新耐震
- 物件タイプ
- 事務所
- 規 模
- 地下2階付9階建
- 取引態様
- 一般媒介
- 竣 工
- 1990年4月
- 設 備
-
E V :1基、天井高:2500㎜、床仕様:OAフロア、空調:個別空調、トイレ:専用 男女別 洋式
その他:機械警備
- 備 考
-
■現況:会議室等造作あり(居抜きor原状回復後引渡し) ■解約予告:6ヶ月前 ■貸主指定の保証会社と保証委託契約を締結していただきます。
注) 上記の価格には、別途、消費税及び地方消費税が課されます。
消費税率が変更された場合には、以後、変更後の税率が課されることとなります。
物件情報更新日:2026-03-31
お気軽にお問合せください
- HOME
- >
- エリアから探す
- >
- 千代田区
- >
- 市ヶ谷・番町・麹町
- >
- フェルテ麹町1・7ビル
- >
- フェルテ麹町1・7ビル 6階
