新耐震
赤坂シグマタワービル
5階(東京都港区赤坂)
新耐震
赤坂シグマタワービル
5階(東京都港区赤坂)
- 賃料(坪単価):
- 相談(@―)
- 共益費(坪単価)
- :
- 相談 (@―)
- 預託金(保証金/敷金)
- :
- ―(12ヶ月)
- 面積
- :
- 192.79坪 (637.35m²)
- 所在地
- :
- 東京都港区赤坂2-17-11
- 最寄駅
- :
-
溜池山王駅まで徒歩3分
溜池山王駅まで徒歩3分
赤坂駅まで徒歩7分
国会議事堂前駅まで徒歩12分
国会議事堂前駅まで徒歩12分
物件情報
所在地・アクセス
- 物件名
- 赤坂シグマタワービル 5階
- 所在地
- 東京都港区赤坂2-17-11
- 最寄駅
-
東京メトロ南北線 溜池山王駅まで徒歩3分
東京メトロ銀座線 溜池山王駅まで徒歩3分
東京メトロ千代田線 赤坂駅まで徒歩7分
東京メトロ丸ノ内線 国会議事堂前駅まで徒歩12分
東京メトロ千代田線 国会議事堂前駅まで徒歩12分
賃貸条件
- 賃料(坪単価)
- 相談(@―)
- 礼 金
- 無
- 共益費(坪単価)
- 相談(@―)
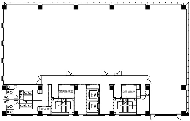
- 面 積
- 192.79坪 (637.35m²)
- 賃料+共益費(坪単価)
- 相談 (@―)
- 償 却
- 無
- 預託金(保証金/敷金)
- ―(12ヶ月)
- 入居可能日
- 2027年4月1日予定
- 更新料(再契約料)
- 無
- 契約期間
- 年相談(定借)
物件概要
- 特 徴
- 構 造
- 鉄骨鉄筋コンクリート造/新耐震
- 物件タイプ
- 事務所
- 規 模
- 7階建
- 取引態様
- 一般媒介
- 竣 工
- 2007年2月
- 設 備
-
E V :2基、天井高:2800㎜、床仕様:OAフロア(H=100mm)、空調:個別空調、トイレ: 男女別 洋式
その他:機械警備、駐車場設備あり
- 備 考
-
■貸室面積には、コアサイドオフィスの面積(10.81㎡/3.27坪)が含まれます。 ■床荷重:500㎏/㎡ ■コンセント容量:60VA/㎡ ■600mm角グリッド天井
注) 上記の価格には、別途、消費税及び地方消費税が課されます。
消費税率が変更された場合には、以後、変更後の税率が課されることとなります。
物件情報更新日:2026-03-02
お気軽にお問合せください
現在募集中の区画
- 階数
- 面積
- 賃料
- 共益費
- 間取図
- HOME
- >
- エリアから探す
- >
- 港区
- >
- 赤坂・六本木
- >
- 赤坂シグマタワービル
- >
- 赤坂シグマタワービル 5階
