当社貸主物件
新耐震
GINZA SAKURA PLAZA
8階(東京都中央区銀座)
当社貸主物件
新耐震
GINZA SAKURA PLAZA
8階(東京都中央区銀座)
- 賃料(坪単価):
- 2,723,400円(@36,000円)
- 共益費(坪単価)
- :
- 賃料に含む (@―)
- 預託金(保証金/敷金)
- :
- 32,680,800円(12ヶ月)
- 面積
- :
- 75.65坪 (250.11m²)
- 所在地
- :
- 東京都中央区銀座1-4-13
- 最寄駅
- :
-
銀座一丁目駅まで徒歩1分
有楽町駅まで徒歩4分
銀座駅まで徒歩5分
京橋駅まで徒歩5分
宝町駅まで徒歩8分
スタッフコメント
GINZA SAURA PLAZAは、銀座サクラ通り沿い角地の新築物件です!ショッピングゾーンである銀座一丁目、桜通り沿いというロケーションにある商業ビルとなります!!東京メトロ有楽町線【銀座一丁目駅】から徒歩1分、JR山手線【有楽町駅】から徒歩4分、東京メトロ丸ノ内線【銀座駅】からは徒歩5分とアクセスが良好です。外壁には高級感が溢れ、「活気」と「気品」がある雰囲気となっております。24時間利用可能、機械警備、光ファイバー、ガス、電気等の設備充実しておりますので、業種、業態ご相談ください。
担当:恒屋 健五 支店:銀座店 更新日:2026年4月15日
物件情報
所在地・アクセス
- 物件名
- GINZA SAKURA PLAZA 8階
- 所在地
- 東京都中央区銀座1-4-13
- 最寄駅
-
東京メトロ有楽町線 銀座一丁目駅まで徒歩1分
JR山手線 有楽町駅まで徒歩4分
東京メトロ丸ノ内線 銀座駅まで徒歩5分
東京メトロ銀座線 京橋駅まで徒歩5分
都営浅草線 宝町駅まで徒歩8分
賃貸条件
- 賃料(坪単価)
- 2,723,400円(@36,000円)
- 礼 金
- 賃料の1ヶ月分
- 共益費(坪単価)
- 賃料に含む(@―)
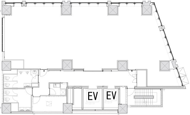
- 面 積
- 75.65坪 (250.11m²)
- 賃料+共益費(坪単価)
- 2,723,400円 (@36,000円)
- 償 却
- 無
- 預託金(保証金/敷金)
- 32,680,800円(12ヶ月)
- 入居可能日
- 即日
- 更新料(再契約料)
- 新賃料の1ヶ月分
- 契約期間
- 5年(定借)
物件概要
- 特 徴
- 構 造
- 鉄筋コンクリート造/新耐震
- 物件タイプ
- 店舗・事務所
- 規 模
- 地下1階付12階建
- 取引態様
- 貸主
- 竣 工
- 2026年2月
- 設 備
-
E V :2基、天井高:―㎜、床仕様:OAフロア、空調:個別空調、トイレ:専用 男女別 洋式
- 備 考
-
■SFビルサポート株式会社と保証委託契約を締結していただきます。 ※与信状況によって預託金額が変動する場合がございます。
注) 上記の価格には、別途、消費税及び地方消費税が課されます。
消費税率が変更された場合には、以後、変更後の税率が課されることとなります。
物件情報更新日:2026-04-14
お気軽にお問合せください
現在募集中の区画
- 階数
- 面積
- 賃料
- 共益費
- 間取図
- HOME
- >
- エリアから探す
- >
- 中央区
- >
- 銀座
- >
- GINZA SAKURA PLAZA
- >
- GINZA SAKURA PLAZA 8階
