新耐震
NBL ARK TOWER
6階(東京都港区赤坂)
新耐震
NBL ARK TOWER
6階(東京都港区赤坂)
- 賃料(坪単価):
- 相談(@―)
- 共益費(坪単価)
- :
- 355,500円 (@3,000円)
- 預託金(保証金/敷金)
- :
- ―(10ヶ月)
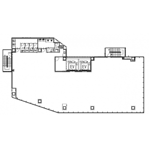
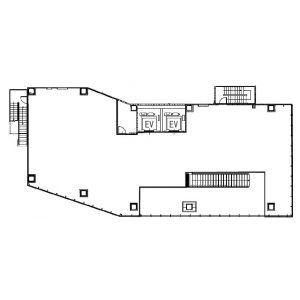
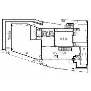
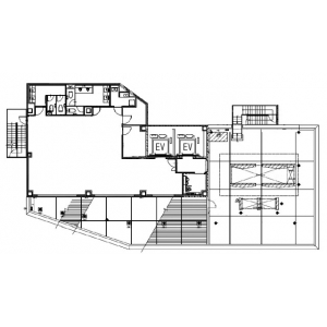
- 面積
- :
- 118.50坪 (391.74m²)
- 所在地
- :
- 東京都港区赤坂4-1-6
- 最寄駅
- :
-
赤坂見附駅まで徒歩2分
赤坂見附駅まで徒歩2分
永田町駅まで徒歩5分
永田町駅まで徒歩5分
赤坂駅まで徒歩5分
物件情報
所在地・アクセス
- 物件名
- NBL ARK TOWER 6階
- 所在地
- 東京都港区赤坂4-1-6
- 最寄駅
-
東京メトロ銀座線 赤坂見附駅まで徒歩2分
東京メトロ丸ノ内線 赤坂見附駅まで徒歩2分
東京メトロ半蔵門線 永田町駅まで徒歩5分
東京メトロ南北線 永田町駅まで徒歩5分
東京メトロ千代田線 赤坂駅まで徒歩5分
賃貸条件
- 賃料(坪単価)
- 相談(@―)
- 礼 金
- 無
- 共益費(坪単価)
- 355,500円(@3,000円)
- 面 積
- 118.50坪 (391.74m²)
- 賃料+共益費(坪単価)
- 相談 (@―)
- 償 却
- 無
- 預託金(保証金/敷金)
- ―(10ヶ月)
- 入居可能日
- 即日
- 更新料(再契約料)
- 無
- 契約期間
- 年相談(定借)
物件概要
- 特 徴
- 構 造
- 鉄骨造/新耐震
- 物件タイプ
- 事務所
- 規 模
- 9階建
- 取引態様
- 一般媒介
- 竣 工
- 2026年1月
- 設 備
-
E V :2基、天井高:2600㎜、床仕様:OAフロア(H=100mm)、空調:個別空調、トイレ:専用 男女別 洋式
その他:機械警備、駐車場設備あり
- 備 考
-
■貸室面積には、トイレ・給湯室等の面積が含まれます。 ■床荷重:300㎏/㎡ ■電気容量:50kVA/㎡ ■エントランス開放時間:平日7:00~22:00、土日祝Close ※左記時間帯以外はセキュリティカード利用により入退館可能 ■貸主指定の保証会社と保証委託契約を締結していただきます。
注) 上記の価格には、別途、消費税及び地方消費税が課されます。
消費税率が変更された場合には、以後、変更後の税率が課されることとなります。
物件情報更新日:2026-04-23
お気軽にお問合せください
現在募集中の区画
- 階数
- 面積
- 賃料
- 共益費
- 間取図
- HOME
- >
- エリアから探す
- >
- 港区
- >
- 赤坂・六本木
- >
- NBL ARK TOWER
- >
- NBL ARK TOWER 6階
