渋谷第一生命ビルディング
6階(東京都渋谷区渋谷)
渋谷第一生命ビルディング
6階(東京都渋谷区渋谷)
- 賃料(坪単価):
- 相談(@―)
- 共益費(坪単価)
- :
- 賃料に含む (@―)
- 預託金(保証金/敷金)
- :
- ―(12ヶ月)
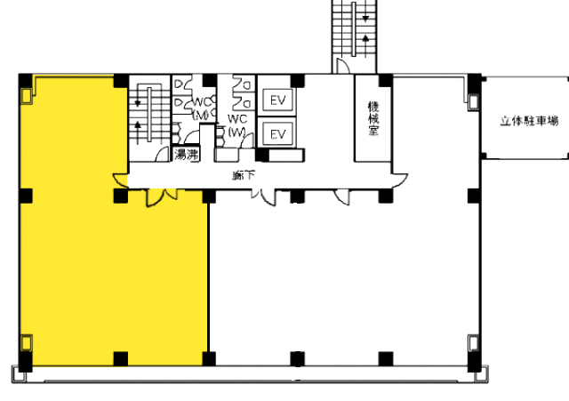
- 面積
- :
- 69.28坪 (229.01m²)
- 所在地
- :
- 東京都渋谷区渋谷3-8-12
- 最寄駅
- :
-
渋谷駅まで徒歩2分
渋谷駅まで徒歩3分
渋谷駅まで徒歩3分
渋谷駅まで徒歩3分
表参道駅まで徒歩13分
物件情報
所在地・アクセス
- 物件名
- 渋谷第一生命ビルディング 6階
- 所在地
- 東京都渋谷区渋谷3-8-12
- 最寄駅
-
東京メトロ副都心線 渋谷駅まで徒歩2分
JR山手線 渋谷駅まで徒歩3分
東京メトロ銀座線 渋谷駅まで徒歩3分
東京メトロ半蔵門線 渋谷駅まで徒歩3分
東京メトロ銀座線 表参道駅まで徒歩13分
賃貸条件
- 賃料(坪単価)
- 相談(@―)
- 礼 金
- 無
- 共益費(坪単価)
- 賃料に含む(@―)
- 面 積
- 69.28坪 (229.01m²)
- 賃料+共益費(坪単価)
- 相談 (@―)
- 償 却
- 無
- 預託金(保証金/敷金)
- ―(12ヶ月)
- 入居可能日
- 即日
- 更新料(再契約料)
- 無
- 契約期間
- 2年
物件概要
- 特 徴
- 構 造
- 鉄骨鉄筋コンクリート造
- 物件タイプ
- 事務所
- 規 模
- 地下1階付10階建
- 取引態様
- 一般媒介
- 竣 工
- 1979年2月
- 設 備
-
E V :2基(17人乗)、天井高:2600㎜、床仕様:Pタイル、空調:セントラル・個別併用、トイレ:共用 男女別 洋式
その他:機械警備、駐車場設備あり
- 備 考
-
■貸室面積には、共用部の面積は含まれません。 ■床荷重:300㎏/㎡ ■エントランス開放時間:平日7:00~20:00、土曜9:00~12:00
注) 上記の価格には、別途、消費税及び地方消費税が課されます。
消費税率が変更された場合には、以後、変更後の税率が課されることとなります。
物件情報更新日:2026-02-17
お気軽にお問合せください
- HOME
- >
- エリアから探す
- >
- 渋谷区
- >
- 渋谷
- >
- 渋谷第一生命ビルディング
- >
- 渋谷第一生命ビルディング 6階
