当社貸主物件
セットアップオフィス
新耐震
フォーライフオフィス東神田ビル
8階(東京都千代田区東神田)
当社貸主物件
セットアップオフィス
新耐震
フォーライフオフィス東神田ビル
8階(東京都千代田区東神田)
- 賃料(坪単価):
- 765,960円(@26,000円)
- 共益費(坪単価)
- :
- 賃料に含む (@―)
- 預託金(保証金/敷金)
- :
- ―(無)
- 面積
- :
- 29.46坪 (97.41m²)
- 所在地
- :
- 東京都千代田区東神田2-10-16
- 最寄駅
- :
-
馬喰町駅まで徒歩4分
馬喰横山駅まで徒歩4分
岩本町駅まで徒歩7分
秋葉原駅まで徒歩9分
秋葉原駅まで徒歩10分
スタッフコメント
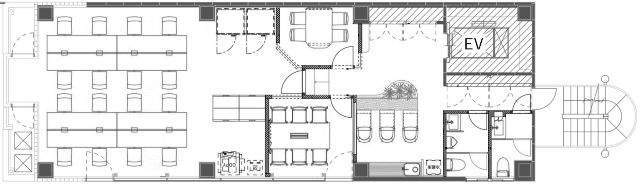
【秋葉原駅】徒歩圏内の立地に、効率を突き詰めたレイアウトのセットアップオフィスが誕生します!JR総武線快速、都営新宿線も利用可能な立地は【東京駅】、【新宿駅】といったターミナルへのアクセスも良好!約30坪のオフィスに、会議室2つ、ラウンジスペースを設置予定です。室内には16名用の椅子・デスク、更には2台のテレカンブースもご用意がございます!Wi-Fiも完備しており、入居後すぐに業務開始が可能です!大通りに面した南向きの窓面からは日中しっかりと太陽光を取り込むことができ、健康的な職場環境に社員の皆様にも喜ばれるのではないでしょうか?コンパクトながら様々な機能を備えた多機能オフィス、ぜひ一度ご内見ください。
担当:元山 貴之 支店:小伝馬町店 更新日:2026年4月10日
物件情報
所在地・アクセス
- 物件名
- フォーライフオフィス東神田ビル 8階
- 所在地
- 東京都千代田区東神田2-10-16
- 最寄駅
-
JR総武線快速 馬喰町駅まで徒歩4分
都営新宿線 馬喰横山駅まで徒歩4分
都営新宿線 岩本町駅まで徒歩7分
東京メトロ日比谷線 秋葉原駅まで徒歩9分
JR山手線 秋葉原駅まで徒歩10分
賃貸条件
- 賃料(坪単価)
- 765,960円(@26,000円)
- 礼 金
- 無
- 共益費(坪単価)
- 賃料に含む(@―)
- 面 積
- 29.46坪 (97.41m²)
- 賃料+共益費(坪単価)
- 765,960円 (@26,000円)
- 償 却
- 無
- 預託金(保証金/敷金)
- ―(無)
- 入居可能日
- 2026年8月上旬予定
- 更新料(再契約料)
- 無
- 契約期間
- 2年
物件概要
- 特 徴
- 構 造
- 鉄骨造/新耐震
- 物件タイプ
- 事務所
- 規 模
- 9階建
- 取引態様
- 貸主
- 竣 工
- 1992年6月
- 設 備
-
E V :1基(9人乗)、天井高:―㎜、床仕様:OAフロア、空調:個別空調、トイレ:専用 男女別 洋式
その他:機械警備、EV不停止機能付
- 備 考
-
■2026年7月、内装造作付きセットアップ工事完了予定 ※リニューアル内容・レイアウト等、変更となる可能性がございますので、予めご了承ください。 ■契約開始より12ヶ月間解約不可(12ヶ月間以内解約の場合、違約金が発生いたします) ■原状回復義務なし(現状変更した場合や破損等を除く) ■クリーニング費用220,000円、Wi-Fi設定費用15,000円をご負担頂きます。(契約時) ■専有部清掃費(週3回):月額50,600円 ■Wi-Fi通信費は賃料に含まれます。 ■SFビルサポート株式会社と保証委託契約を締結していただきます。※与信状況によって敷金の預託をお願いする場合がございます。
注) 上記の価格には、別途、消費税及び地方消費税が課されます。
消費税率が変更された場合には、以後、変更後の税率が課されることとなります。
物件情報更新日:2026-04-09
お気軽にお問合せください
- HOME
- >
- エリアから探す
- >
- 千代田区
- >
- 御茶ノ水・神田・秋葉原
- >
- フォーライフオフィス東神田ビル
- >
- フォーライフオフィス東神田ビル 8階
