新耐震
リプロ神田ビル
3階(東京都千代田区神田富山町)
新耐震
リプロ神田ビル
3階(東京都千代田区神田富山町)
- 賃料(坪単価):
- 259,200円(@16,000円)
- 共益費(坪単価)
- :
- 賃料に含む (@―)
- 預託金(保証金/敷金)
- :
- 1,036,800円(4ヶ月)
- 面積
- :
- 16.20坪 (53.55m²)
- 所在地
- :
- 東京都千代田区神田富山町17
- 最寄駅
- :
-
神田駅まで徒歩2分
神田駅まで徒歩3分
岩本町駅まで徒歩4分
秋葉原駅まで徒歩6分
秋葉原駅まで徒歩6分
物件情報
所在地・アクセス
- 物件名
- リプロ神田ビル 3階
- 所在地
- 東京都千代田区神田富山町17
- 最寄駅
-
東京メトロ銀座線 神田駅まで徒歩2分
JR山手線 神田駅まで徒歩3分
都営新宿線 岩本町駅まで徒歩4分
東京メトロ日比谷線 秋葉原駅まで徒歩6分
JR京浜東北線 秋葉原駅まで徒歩6分
賃貸条件
- 賃料(坪単価)
- 259,200円(@16,000円)
- 礼 金
- 無
- 共益費(坪単価)
- 賃料に含む(@―)
- 面 積
- 16.20坪 (53.55m²)
- 賃料+共益費(坪単価)
- 259,200円 (@16,000円)
- 償 却
- 賃料の1ヶ月分
- 預託金(保証金/敷金)
- 1,036,800円(4ヶ月)
- 入居可能日
- 即日
- 更新料(再契約料)
- 新賃料の1ヶ月分
- 契約期間
- 2年
物件概要
- 特 徴
- 構 造
- 鉄骨鉄筋コンクリート造/新耐震
- 物件タイプ
- 事務所
- 規 模
- 9階建
- 取引態様
- 一般媒介
- 竣 工
- 1988年11月
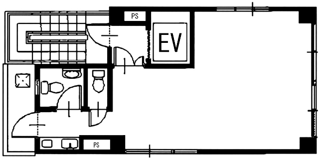
- 設 備
-
E V :1基、天井高:―㎜、床仕様:―、空調:―、トイレ:専用 男女別 洋式
- 備 考
-
■貸主指定の火災保険にご加入いただきます。 ■貸主指定の保証会社と保証委託契約を締結していただきます。
注) 上記の価格には、別途、消費税及び地方消費税が課されます。
消費税率が変更された場合には、以後、変更後の税率が課されることとなります。
物件情報更新日:2026-02-04
お気軽にお問合せください
- HOME
- >
- エリアから探す
- >
- 千代田区
- >
- 御茶ノ水・神田・秋葉原
- >
- リプロ神田ビル
- >
- リプロ神田ビル 3階
