セットアップオフィス
キャンペーン実施中
Cocoro Kanda Bldg.
6階(東京都千代田区神田須田町)
セットアップオフィス
キャンペーン実施中
Cocoro Kanda Bldg.
6階(東京都千代田区神田須田町)
- 賃料(坪単価):
- 1,324,800円(@30,000円)
- 共益費(坪単価)
- :
- 賃料に含む (@―)
- 預託金(保証金/敷金)
- :
- ―(無)
- 面積
- :
- 44.16坪 (145.98m²)
- 所在地
- :
- 東京都千代田区神田須田町2-2-5
- 最寄駅
- :
-
神田駅まで徒歩2分
岩本町駅まで徒歩3分
神田駅まで徒歩4分
秋葉原駅まで徒歩6分
秋葉原駅まで徒歩6分
撮影更新日:2026年03月30日
スタッフコメント
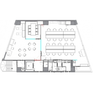
JR山手線【神田駅】徒歩4分に加え、東京メトロ銀座線【神田駅】徒歩2分と、複数路線が利用可能。都内主要駅へのアクセスや、従業員の皆様の通勤利便性に優れた立地の、什器付きフルセットアップオフィスです!!貸室は執務室20席、会議室1つ(6名掛け)に加え、充実したオープンスペースを設置した開放的な空間づくりで快適性を高めたレイアウト内容になっております。各階でリニューアルテイストを変えているため、雰囲気も様々。また、EV不停止機能も備わっておりますのでセキュリティ面も安心できるオフィス環境になっております。周辺環境はオフィスビル、飲食店で賑わっており、ランチ環境も充実しております。是非、お気軽にお問い合わせくださいませ!
担当:田中 辰郎 支店:神田店 更新日:2026年4月22日
物件情報
所在地・アクセス
- 物件名
- Cocoro Kanda Bldg. 6階
- 所在地
- 東京都千代田区神田須田町2-2-5
- 最寄駅
-
東京メトロ銀座線 神田駅まで徒歩2分
都営新宿線 岩本町駅まで徒歩3分
JR山手線 神田駅まで徒歩4分
東京メトロ日比谷線 秋葉原駅まで徒歩6分
JR山手線 秋葉原駅まで徒歩6分
賃貸条件
- 賃料(坪単価)
- 1,324,800円(@30,000円)
- 礼 金
- 無
- 共益費(坪単価)
- 賃料に含む(@―)
- 面 積
- 44.16坪 (145.98m²)
- 賃料+共益費(坪単価)
- 1,324,800円 (@30,000円)
- 償 却
- 無
- 預託金(保証金/敷金)
- ―(無)
- 入居可能日
- 即日
- 更新料(再契約料)
- 無
- 契約期間
- 2年
物件概要
- 特 徴
- 構 造
- 鉄骨鉄筋コンクリート造
- 物件タイプ
- 事務所
- 規 模
- 8階建
- 取引態様
- 一般媒介
- 竣 工
- 1983年4月
- 設 備
-
E V :1基(9人乗)、天井高:2,850mm㎜、床仕様:OAフロア(H=40mm)、空調:個別空調、トイレ:専用 男女別 洋式
その他:機械警備、駐車場設備あり
- 備 考
-
■2020年2月、20名用執務室什器・内装造作付きフルセットアップオフィス工事完了(6名用会議室) ■貸室面積には、トイレ・給湯室等の面積が含まれます。 ■エントランス開放時間:平日6:30~21:00、土曜8:00~18:00 ※左記時間帯以外はセキュリティカード利用により入退館可能 ■貸主指定の保証会社と保証委託契約を締結していただきます。※締結いただかない場合、敷金は賃料の10ヶ月分となります。
注) 上記の価格には、別途、消費税及び地方消費税が課されます。
消費税率が変更された場合には、以後、変更後の税率が課されることとなります。
物件情報更新日:2026-04-21
お気軽にお問合せください
キャンペーン実施中。詳細はお問合せ下さい。
この物件のお問合せ現在募集中の区画
- 階数
- 面積
- 賃料
- 共益費
- 間取図
- HOME
- >
- エリアから探す
- >
- 千代田区
- >
- 御茶ノ水・神田・秋葉原
- >
- Cocoro Kanda Bldg.
- >
- Cocoro Kanda Bldg. 6階
