新耐震基準適合
柳屋ビルディング
6階(東京都中央区日本橋)
新耐震基準適合
柳屋ビルディング
6階(東京都中央区日本橋)
- 賃料(坪単価):
- 相談(@―)
- 共益費(坪単価)
- :
- 相談 (@―)
- 預託金(保証金/敷金)
- :
- ―(相談)
- 面積
- :
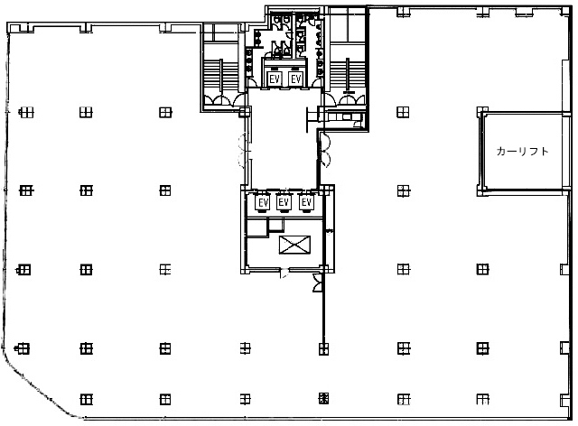
- 536.30坪 (1772.90m²)
- 所在地
- :
- 東京都中央区日本橋2-1-10
- 最寄駅
- :
-
日本橋駅まで徒歩1分
日本橋駅まで徒歩1分
日本橋駅まで徒歩1分
三越前駅まで徒歩4分
三越前駅まで徒歩4分
物件情報
所在地・アクセス
- 物件名
- 柳屋ビルディング 6階
- 所在地
- 東京都中央区日本橋2-1-10
- 最寄駅
-
東京メトロ銀座線 日本橋駅まで徒歩1分
東京メトロ東西線 日本橋駅まで徒歩1分
都営浅草線 日本橋駅まで徒歩1分
東京メトロ半蔵門線 三越前駅まで徒歩4分
東京メトロ銀座線 三越前駅まで徒歩4分
賃貸条件
- 賃料(坪単価)
- 相談(@―)
- 礼 金
- 無
- 共益費(坪単価)
- 相談(@―)
- 面 積
- 536.30坪 (1772.90m²)
- 賃料+共益費(坪単価)
- 相談 (@―)
- 償 却
- 無
- 預託金(保証金/敷金)
- ―(相談)
- 入居可能日
- 2026年6月予定
- 更新料(再契約料)
- 無
- 契約期間
- 5年(定借)
物件概要
物件情報更新日:2026-03-04
お気軽にお問合せください
現在募集中の区画
- 階数
- 面積
- 賃料
- 共益費
- 間取図
- HOME
- >
- エリアから探す
- >
- 中央区
- >
- 八重洲・京橋・日本橋
- >
- 柳屋ビルディング
- >
- 柳屋ビルディング 6階
