新耐震
立石本町ビル
4階(東京都中央区日本橋本町)
新耐震
立石本町ビル
4階(東京都中央区日本橋本町)
- 賃料(坪単価):
- 相談(@―)
- 共益費(坪単価)
- :
- 賃料に含む (@―)
- 預託金(保証金/敷金)
- :
- ―(12ヶ月)
- 面積
- :
- 25.90坪 (85.61m²)
- 所在地
- :
- 東京都中央区日本橋本町1-1-3
- 最寄駅
- :
-
三越前駅まで徒歩3分
三越前駅まで徒歩3分
新日本橋駅まで徒歩6分
日本橋駅まで徒歩6分
日本橋駅まで徒歩7分
物件情報
所在地・アクセス
- 物件名
- 立石本町ビル 4階
- 所在地
- 東京都中央区日本橋本町1-1-3
- 最寄駅
-
東京メトロ銀座線 三越前駅まで徒歩3分
東京メトロ半蔵門線 三越前駅まで徒歩3分
JR総武線快速 新日本橋駅まで徒歩6分
都営浅草線 日本橋駅まで徒歩6分
東京メトロ東西線 日本橋駅まで徒歩7分
賃貸条件
- 賃料(坪単価)
- 相談(@―)
- 礼 金
- 無
- 共益費(坪単価)
- 賃料に含む(@―)
- 面 積
- 25.90坪 (85.61m²)
- 賃料+共益費(坪単価)
- 相談 (@―)
- 償 却
- 賃料の1ヶ月分
- 預託金(保証金/敷金)
- ―(12ヶ月)
- 入居可能日
- 2026年6月1日予定
- 更新料(再契約料)
- 無
- 契約期間
- 2年
物件概要
- 特 徴
- 構 造
- 鉄骨造/新耐震
- 物件タイプ
- 事務所
- 規 模
- 9階建
- 取引態様
- 一般媒介
- 竣 工
- 2008年1月
- 設 備
-
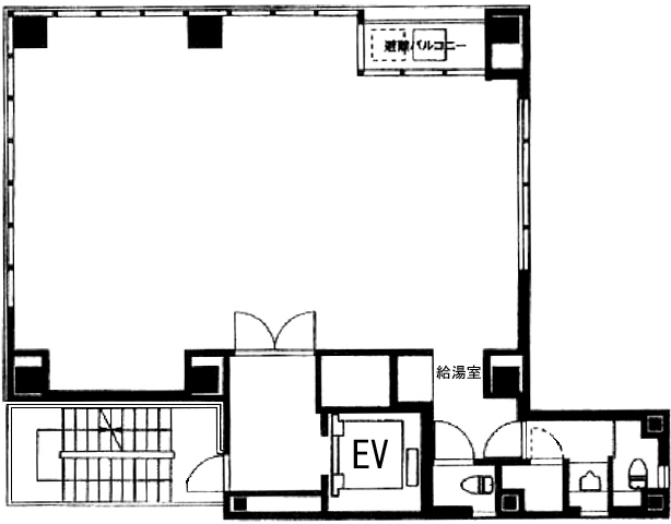
E V :1基(9人乗)、天井高:2600㎜、床仕様:OAフロア(H=50mm)、空調:個別空調、トイレ:専用 男女別 洋式
その他:機械警備
- 備 考
-
■貸室面積には、トイレ・給湯室等の面積が含まれます。
注) 上記の価格には、別途、消費税及び地方消費税が課されます。
消費税率が変更された場合には、以後、変更後の税率が課されることとなります。
物件情報更新日:2026-04-06
お気軽にお問合せください
現在募集中の区画
- 階数
- 面積
- 賃料
- 共益費
- 間取図
- HOME
- >
- エリアから探す
- >
- 中央区
- >
- 八重洲・京橋・日本橋
- >
- 立石本町ビル
- >
- 立石本町ビル 4階
