新耐震
日伸ビル
3階(東京都千代田区岩本町)
新耐震
日伸ビル
3階(東京都千代田区岩本町)
- 賃料(坪単価):
- 640,000円(@16,000円)
- 共益費(坪単価)
- :
- 無 (@―)
- 預託金(保証金/敷金)
- :
- 5,120,000円(8ヶ月)
- 面積
- :
- 40.00坪 (132.24m²)
- 所在地
- :
- 東京都千代田区岩本町1-3-2
- 最寄駅
- :
-
新日本橋駅まで徒歩4分
岩本町駅まで徒歩5分
神田駅まで徒歩5分
神田駅まで徒歩6分
小伝馬町駅まで徒歩7分
物件情報
所在地・アクセス
- 物件名
- 日伸ビル 3階
- 所在地
- 東京都千代田区岩本町1-3-2
- 最寄駅
-
JR総武線快速 新日本橋駅まで徒歩4分
都営新宿線 岩本町駅まで徒歩5分
東京メトロ銀座線 神田駅まで徒歩5分
JR山手線 神田駅まで徒歩6分
東京メトロ日比谷線 小伝馬町駅まで徒歩7分
賃貸条件
- 賃料(坪単価)
- 640,000円(@16,000円)
- 礼 金
- 無
- 共益費(坪単価)
- 無(@―)
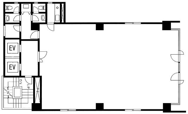
- 面 積
- 40.00坪 (132.24m²)
- 賃料+共益費(坪単価)
- 640,000円 (@16,000円)
- 償 却
- 賃料の2ヶ月分
- 預託金(保証金/敷金)
- 5,120,000円(8ヶ月)
- 入居可能日
- 即日
- 更新料(再契約料)
- 新賃料の1ヶ月分
- 契約期間
- 2年
物件概要
- 特 徴
- 構 造
- 鉄骨鉄筋コンクリート造/新耐震
- 物件タイプ
- 事務所
- 規 模
- 9階建
- 取引態様
- 一般媒介
- 竣 工
- 1988年10月
- 設 備
-
E V :2基、天井高:2600㎜、床仕様:タイルカーペット、空調:個別空調、トイレ:専用 男女別 洋式
その他:機械警備
- 備 考
-
■貸室面積には、トイレ・給湯室等の面積が含まれます。 ■貸主指定の保証会社と保証委託契約を締結していただきます。
注) 上記の価格には、別途、消費税及び地方消費税が課されます。
消費税率が変更された場合には、以後、変更後の税率が課されることとなります。
物件情報更新日:2026-05-13
お気軽にお問合せください
- HOME
- >
- エリアから探す
- >
- 千代田区
- >
- 御茶ノ水・神田・秋葉原
- >
- 日伸ビル
- >
- 日伸ビル 3階
