当社貸主物件
セットアップオフィス
新耐震
NOVEL WORK Iwamotocho
8階(東京都千代田区岩本町)
当社貸主物件
セットアップオフィス
新耐震
NOVEL WORK Iwamotocho
8階(東京都千代田区岩本町)
- 賃料(坪単価):
- 746,830円(@23,500円)
- 共益費(坪単価)
- :
- 賃料に含む (@―)
- 預託金(保証金/敷金)
- :
- 2,987,320円(4ヶ月)
- 面積
- :
- 31.78坪 (105.07m²)
- 所在地
- :
- 東京都千代田区岩本町3-1-9
- 最寄駅
- :
-
岩本町駅まで徒歩3分
秋葉原駅まで徒歩5分
秋葉原駅まで徒歩7分
神田駅まで徒歩7分
神田駅まで徒歩7分
スタッフコメント
本物件は都営新宿線【岩本町駅】やJR各線【秋葉原駅】・【神田駅】が徒歩圏内で利用可能な立地にございます。2023年にリニューアルした外観やエントランスは、レトロなレンガ造を生かしつつ、清潔感のあるデザインが魅力です。貸室内はカジュアルな現代風デザインを基調とした空間が広がり、ラウンジ、会議室(6名用)、テレカンブース1台を設置しております。冷蔵庫や電子レンジ等もあらかじめ設置しているため、より働きやすい環境を提供できます。「毎日をちょっとカッコよく」をコンセプトに追求したデザイン性だけでなく、入居後の内装工事にかかる手間やコストを削減できる機能性も兼ね備えたオフィスとなっております。交通アクセスやデザイン性の高い貸室で、リクルートにも強い効果が期待できます。
担当:中田 瑛 支店:小伝馬町店 更新日:2026年4月8日
物件情報
所在地・アクセス
- 物件名
- NOVEL WORK Iwamotocho 8階
- 所在地
- 東京都千代田区岩本町3-1-9
- 最寄駅
-
都営新宿線 岩本町駅まで徒歩3分
東京メトロ日比谷線 秋葉原駅まで徒歩5分
JR山手線 秋葉原駅まで徒歩7分
JR山手線 神田駅まで徒歩7分
東京メトロ銀座線 神田駅まで徒歩7分
賃貸条件
- 賃料(坪単価)
- 746,830円(@23,500円)
- 礼 金
- 無
- 共益費(坪単価)
- 賃料に含む(@―)
- 面 積
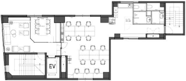
- 31.78坪 (105.07m²)
- 賃料+共益費(坪単価)
- 746,830円 (@23,500円)
- 償 却
- 無
- 預託金(保証金/敷金)
- 2,987,320円(4ヶ月)
- 入居可能日
- 2026年7月予定
- 更新料(再契約料)
- 無
- 契約期間
- 2年
物件概要
- 特 徴
- 構 造
- 鉄骨鉄筋コンクリート造/新耐震
- 物件タイプ
- 事務所
- 規 模
- 地下1階付9階建
- 取引態様
- 貸主
- 竣 工
- 1989年10月
- 設 備
-
E V :1基、天井高:―㎜、床仕様:OAフロア、空調:個別空調、トイレ:専用 男女別 洋式
その他:機械警備、EV不停止機能付
- 備 考
-
■2023年12月、貸室内リニューアル完成済! ■貸主指定の清掃会社と貸室内の清掃契約を締結していただきます。 ■SFビルサポート株式会社と保証委託契約を締結していただきます。 ※与信状況によって預託金額が変動する場合がございます。
注) 上記の価格には、別途、消費税及び地方消費税が課されます。
消費税率が変更された場合には、以後、変更後の税率が課されることとなります。
物件情報更新日:2026-04-07
お気軽にお問合せください
現在募集中の区画
- 階数
- 面積
- 賃料
- 共益費
- 間取図
- HOME
- >
- エリアから探す
- >
- 千代田区
- >
- 御茶ノ水・神田・秋葉原
- >
- NOVEL WORK Iwamotocho
- >
- NOVEL WORK Iwamotocho 8階
