新耐震
PMO芝大門
8階(東京都港区芝大門)
新耐震
PMO芝大門
8階(東京都港区芝大門)
- 賃料(坪単価):
- 相談(@―)
- 共益費(坪単価)
- :
- 賃料に含む (@―)
- 預託金(保証金/敷金)
- :
- ―(12ヶ月)
- 面積
- :
- 55.33坪 (182.92m²)
- 所在地
- :
- 東京都港区芝大門1-10-18
- 最寄駅
- :
-
御成門駅まで徒歩3分
大門駅まで徒歩4分
浜松町駅まで徒歩8分
浜松町駅まで徒歩8分
汐留駅まで徒歩14分
物件情報
所在地・アクセス
- 物件名
- PMO芝大門 8階
- 所在地
- 東京都港区芝大門1-10-18
- 最寄駅
-
都営三田線 御成門駅まで徒歩3分
都営大江戸線 大門駅まで徒歩4分
JR山手線 浜松町駅まで徒歩8分
JR京浜東北線 浜松町駅まで徒歩8分
ゆりかもめ 汐留駅まで徒歩14分
賃貸条件
- 賃料(坪単価)
- 相談(@―)
- 礼 金
- 無
- 共益費(坪単価)
- 賃料に含む(@―)
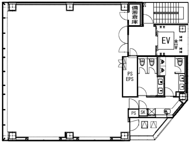
- 面 積
- 55.33坪 (182.92m²)
- 賃料+共益費(坪単価)
- 相談 (@―)
- 償 却
- 無
- 預託金(保証金/敷金)
- ―(12ヶ月)
- 入居可能日
- 2026年6月1日予定
- 更新料(再契約料)
- 無
- 契約期間
- 3年(定借)
物件概要
- 特 徴
- 構 造
- 鉄骨造・一部鉄骨鉄筋コンクリート造/新耐震
- 物件タイプ
- 事務所
- 規 模
- 9階建
- 取引態様
- 一般媒介
- 竣 工
- 2014年9月
- 設 備
-
E V :1基(13人乗)、天井高:2750㎜、床仕様:OAフロア(H=100mm)、空調:個別空調、トイレ:専用 男女別 洋式
その他:機械警備、EV不停止機能付、エントランスセキュリティ
- 備 考
-
※契約面積や賃貸条件は、㎡を基準単位とします。 ■耐震構造 ■引渡し:現況有姿(事務所居抜き) ■貸室面積には、備蓄倉庫・トイレ・パントリーの面積(30.34㎡/9.17坪)が含まれます。 ■床荷重:500㎏/㎡(一部1,000㎏/㎡) ■電気容量:60VA/㎡(75VA/㎡まで増設可能) ■LED照明 ■喫煙ルームあり ■貸主指定の保証会社と保証委託契約を締結していただきます。
注) 上記の価格には、別途、消費税及び地方消費税が課されます。
消費税率が変更された場合には、以後、変更後の税率が課されることとなります。
物件情報更新日:2025-11-21
お気軽にお問合せください
- HOME
- >
- エリアから探す
- >
- 港区
- >
- 浜松町・芝大門・芝公園
- >
- PMO芝大門
- >
- PMO芝大門 8階
