新耐震
PAL音羽ビル
7階(東京都文京区音羽)
新耐震
PAL音羽ビル
7階(東京都文京区音羽)
- 賃料(坪単価):
- 240,000円(@―)
- 共益費(坪単価)
- :
- 賃料に含む (@―)
- 預託金(保証金/敷金)
- :
- 2,400,000円(10ヶ月)
- 面積
- :
- 22.46坪 (74.25m²)
- 所在地
- :
- 東京都文京区音羽1-20-16
- 最寄駅
- :
-
護国寺駅まで徒歩4分
江戸川橋駅まで徒歩8分
茗荷谷駅まで徒歩14分
物件情報
所在地・アクセス
- 物件名
- PAL音羽ビル 7階
- 所在地
- 東京都文京区音羽1-20-16
- 最寄駅
-
東京メトロ有楽町線 護国寺駅まで徒歩4分
東京メトロ有楽町線 江戸川橋駅まで徒歩8分
東京メトロ丸ノ内線 茗荷谷駅まで徒歩14分
賃貸条件
- 賃料(坪単価)
- 240,000円(@―)
- 礼 金
- 無
- 共益費(坪単価)
- 賃料に含む(@―)
- 面 積
- 22.46坪 (74.25m²)
- 賃料+共益費(坪単価)
- 240,000円 (@―)
- 償 却
- 無
- 預託金(保証金/敷金)
- 2,400,000円(10ヶ月)
- 入居可能日
- 即日
- 更新料(再契約料)
- ―
- 契約期間
- 年相談(定借)
物件概要
- 特 徴
-
- 構 造
- 鉄筋コンクリート造/新耐震
- 物件タイプ
- 事務所
- 規 模
- 8階建
- 取引態様
- 一般媒介
- 竣 工
- 1986年5月
- 設 備
-
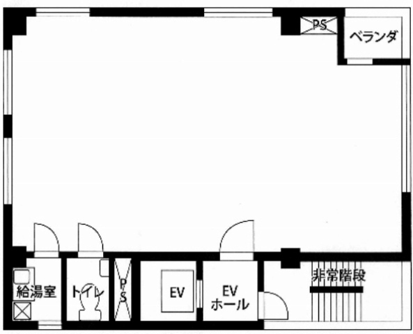
E V :1基、天井高:2,550mm(一部梁下2,350mm)㎜、床仕様:タイルカーペット、空調:個別空調、トイレ:専用
その他:機械警備
- 備 考
-
■貸主指定の火災保険にご加入いただきます。 ■貸主指定の保証会社と保証委託契約を締結していただきます。
注) 上記の価格には、別途、消費税及び地方消費税が課されます。
消費税率が変更された場合には、以後、変更後の税率が課されることとなります。
物件情報更新日:2025-11-20
お気軽にお問合せください
