新耐震
プライム千駄ヶ谷ビル (旧:JPR千駄ヶ谷ビル)
5階(東京都渋谷区千駄ヶ谷)
新耐震
プライム千駄ヶ谷ビル (旧:JPR千駄ヶ谷ビル)
5階(東京都渋谷区千駄ヶ谷)
- 賃料(坪単価):
- 相談(@―)
- 共益費(坪単価)
- :
- 相談 (@―)
- 預託金(保証金/敷金)
- :
- 相談(―)
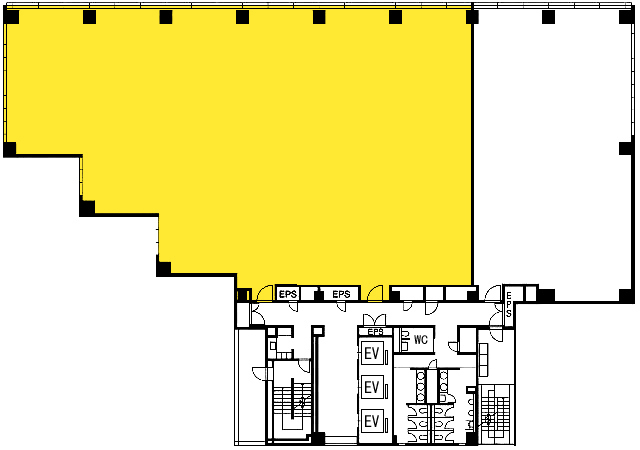
- 面積
- :
- 175.58坪 (580.46m²)
- 所在地
- :
- 東京都渋谷区千駄ヶ谷4-23-5
- 最寄駅
- :
-
北参道駅まで徒歩4分
千駄ヶ谷駅まで徒歩6分
国立競技場駅まで徒歩6分
代々木駅まで徒歩7分
代々木駅まで徒歩8分
物件情報
所在地・アクセス
- 物件名
- プライム千駄ヶ谷ビル (旧:JPR千駄ヶ谷ビル) 5階
- 所在地
- 東京都渋谷区千駄ヶ谷4-23-5
- 最寄駅
-
東京メトロ副都心線 北参道駅まで徒歩4分
JR中央線 千駄ヶ谷駅まで徒歩6分
都営大江戸線 国立競技場駅まで徒歩6分
JR中央線 代々木駅まで徒歩7分
JR山手線 代々木駅まで徒歩8分
賃貸条件
- 賃料(坪単価)
- 相談(@―)
- 礼 金
- 相談
- 共益費(坪単価)
- 相談(@―)
- 面 積
- 175.58坪 (580.46m²)
- 賃料+共益費(坪単価)
- 相談 (@―)
- 償 却
- 相談
- 預託金(保証金/敷金)
- 相談(―)
- 入居可能日
- 相談
- 更新料(再契約料)
- 相談
- 契約期間
- 相談
物件概要
- 特 徴
- 構 造
- 鉄骨造・一部鉄筋コンクリート造/新耐震
- 物件タイプ
- 事務所
- 規 模
- 8階建
- 取引態様
- 一般媒介
- 竣 工
- 2009年5月
- 設 備
-
E V :3基(15人乗)、天井高:2800㎜、床仕様:OAフロア(H=100mm)、空調:個別空調、トイレ:共用 男女別 洋式
その他:機械警備、EV不停止機能付、駐車場設備あり
- 備 考
- お問い合わせください。
物件情報更新日:2025-12-17
お気軽にお問合せください
- HOME
- >
- エリアから探す
- >
- 渋谷区
- >
- 千駄ヶ谷・神宮前
- >
- プライム千駄ヶ谷ビル (旧:JPR千駄ヶ谷ビル)
- >
- プライム千駄ヶ谷ビル (旧:JPR千駄ヶ谷ビル) 5階
