新耐震基準適合
金盃第3ビル
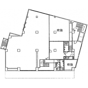
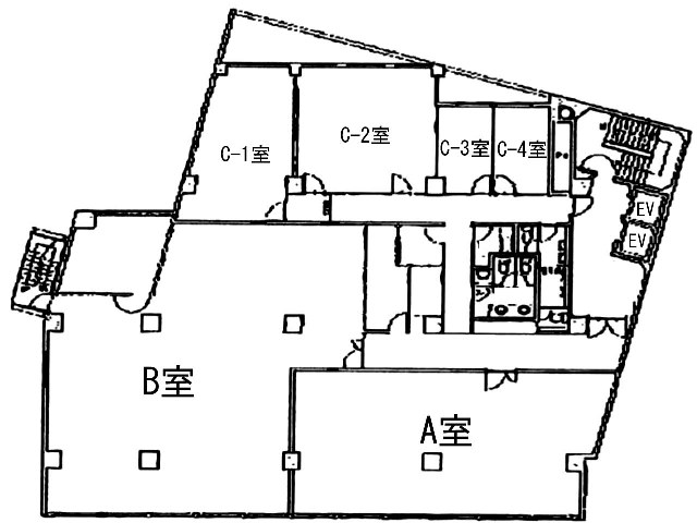
2階A室(東京都中央区新川)
新耐震基準適合
金盃第3ビル
2階A室(東京都中央区新川)
- 賃料(坪単価):
- 262,560円(@8,000円)
- 共益費(坪単価)
- :
- 49,230円 (@1,500円)
- 預託金(保証金/敷金)
- :
- 2,100,480円(8ヶ月)
- 面積
- :
- 32.82坪 (108.50m²)
- 所在地
- :
- 東京都中央区新川1-14-5
- 最寄駅
- :
-
茅場町駅まで徒歩6分
茅場町駅まで徒歩6分
八丁堀駅まで徒歩9分
八丁堀駅まで徒歩9分
新富町駅まで徒歩15分
物件情報
所在地・アクセス
- 物件名
- 金盃第3ビル 2階A室
- 所在地
- 東京都中央区新川1-14-5
- 最寄駅
-
東京メトロ東西線 茅場町駅まで徒歩6分
東京メトロ日比谷線 茅場町駅まで徒歩6分
JR京葉線 八丁堀駅まで徒歩9分
東京メトロ日比谷線 八丁堀駅まで徒歩9分
東京メトロ有楽町線 新富町駅まで徒歩15分
賃貸条件
- 賃料(坪単価)
- 262,560円(@8,000円)
- 礼 金
- 無
- 共益費(坪単価)
- 49,230円(@1,500円)
- 面 積
- 32.82坪 (108.50m²)
- 賃料+共益費(坪単価)
- 311,790円 (@9,500円)
- 償 却
- 無
- 預託金(保証金/敷金)
- 2,100,480円(8ヶ月)
- 入居可能日
- 即日
- 更新料(再契約料)
- 新賃料の1ヶ月分
- 契約期間
- 3年(定借)
物件概要
- 特 徴
- 構 造
- 鉄骨鉄筋コンクリート造/新耐震基準適合
- 物件タイプ
- 事務所
- 規 模
- 地下1階付10階建
- 取引態様
- 一般媒介
- 竣 工
- 1973年4月
- 設 備
-
E V :2基、天井高:―㎜、床仕様:OAフロア、空調:個別空調、トイレ:共用 男女別 洋式
その他:機械警備
- 備 考
-
■2013年、耐震補強工事実施済済 ■2014年11月、外壁・エントランス等共用部リニューアル実施済 ■貸主指定の火災保険にご加入いただきます。 ■貸主指定の保証会社と保証委託契約を締結していただきます。
注) 上記の価格には、別途、消費税及び地方消費税が課されます。
消費税率が変更された場合には、以後、変更後の税率が課されることとなります。
物件情報更新日:2026-01-13
お気軽にお問合せください
現在募集中の区画
- 階数
- 面積
- 賃料
- 共益費
- 間取図
- HOME
- >
- エリアから探す
- >
- 中央区
- >
- 茅場町・兜町・人形町・新川
- >
- 金盃第3ビル
- >
- 金盃第3ビル 2階A室
