赤須ビル
半地下1階(東京都渋谷区神宮前)
赤須ビル
半地下1階(東京都渋谷区神宮前)
- 賃料(坪単価):
- 631,250円(@25,000円)
- 共益費(坪単価)
- :
- 賃料に含む (@―)
- 預託金(保証金/敷金)
- :
- 5,050,000円(8ヶ月)
- 面積
- :
- 25.25坪 (83.47m²)
- 所在地
- :
- 東京都渋谷区神宮前3-14-17
- 最寄駅
- :
-
明治神宮前駅まで徒歩6分
表参道駅まで徒歩6分
明治神宮前駅まで徒歩7分
表参道駅まで徒歩7分
原宿駅まで徒歩9分
スタッフコメント
当物件は、感度の高いショップが集まる神宮前エリアに位置し、落ち着きつつも人の動きが感じられるエリアにございます。周辺にはアパレルやギャラリー、カフェなどが点在し、情報発信力のある立地となります。サービス店舗はもちろん、物販店舗との親和性も高く、幅広いテナント様におすすめです。落ち着いた立地だからこそ、腰を据えた集客が期待できる環境です。
担当:立和田 航平 支店:渋谷店 更新日:2026年2月10日
物件情報
所在地・アクセス
- 物件名
- 赤須ビル 半地下1階
- 所在地
- 東京都渋谷区神宮前3-14-17
- 最寄駅
-
東京メトロ副都心線 明治神宮前駅まで徒歩6分
東京メトロ半蔵門線 表参道駅まで徒歩6分
東京メトロ千代田線 明治神宮前駅まで徒歩7分
東京メトロ銀座線 表参道駅まで徒歩7分
JR山手線 原宿駅まで徒歩9分
賃貸条件
- 賃料(坪単価)
- 631,250円(@25,000円)
- 礼 金
- 無
- 共益費(坪単価)
- 賃料に含む(@―)
- 面 積
- 25.25坪 (83.47m²)
- 賃料+共益費(坪単価)
- 631,250円 (@25,000円)
- 償 却
- 賃料の2ヶ月分
- 預託金(保証金/敷金)
- 5,050,000円(8ヶ月)
- 入居可能日
- 相談
- 更新料(再契約料)
- 新賃料の1ヶ月分
- 契約期間
- 年相談(定借)
物件概要
- 特 徴
-
- 構 造
- 鉄筋コンクリート造
- 物件タイプ
- 店舗・事務所
- 規 模
- 地下1階付2階建
- 取引態様
- 一般媒介
- 竣 工
- 1980年11月
- 設 備
-
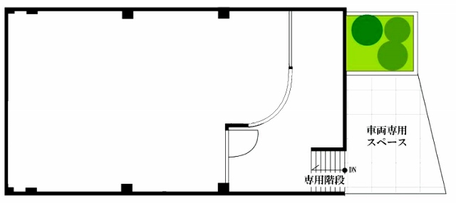
天井高:―㎜、床仕様:塩ビシート、空調:個別空調、トイレ:専用 男女共用 洋式
- 備 考
-
■飲食店舗不可 ■専用ドライエリア有 ■貸主指定の保証会社と保証委託契約を締結していただきます。
注) 上記の価格には、別途、消費税及び地方消費税が課されます。
消費税率が変更された場合には、以後、変更後の税率が課されることとなります。
物件情報更新日:2026-02-09
お気軽にお問合せください
