当社管理物件
新耐震
第3山田ビル
6階(東京都新宿区愛住町)
当社管理物件
新耐震
第3山田ビル
6階(東京都新宿区愛住町)
- 賃料(坪単価):
- 1,420,440円(@14,000円)
- 共益費(坪単価)
- :
- 賃料に含む (@―)
- 預託金(保証金/敷金)
- :
- 14,204,400円(10ヶ月)
- 面積
- :
- 101.46坪 (335.41m²)
- 所在地
- :
- 東京都新宿区愛住町22
- 最寄駅
- :
-
曙橋駅まで徒歩2分
四谷三丁目駅まで徒歩8分
新宿御苑前駅まで徒歩13分
四ツ谷駅まで徒歩17分
四ツ谷駅まで徒歩18分
スタッフコメント
都営新宿線【曙橋駅】徒歩2分!駅近でグレード感ある物件をお探しの方にピッタリです。 ゆとりのあるエントランス、EVホールに加え、EVも2基完備されております。 スペックはもちろんのこと、窓面も大きく自然光たっぷり、開放感も◎な物件です。周辺にはコンビニ、郵便局、カフェ、飲食店舗とオフィス周辺に欲しい施設が充実しており、利便性の高さも感じていただけるかと思います。是非一度ご内見ください!
担当:有賀 日菜子 支店:新宿店 更新日:2026年4月9日
物件情報
所在地・アクセス
- 物件名
- 第3山田ビル 6階
- 所在地
- 東京都新宿区愛住町22
- 最寄駅
-
都営新宿線 曙橋駅まで徒歩2分
東京メトロ丸ノ内線 四谷三丁目駅まで徒歩8分
東京メトロ丸ノ内線 新宿御苑前駅まで徒歩13分
東京メトロ南北線 四ツ谷駅まで徒歩17分
JR中央線快速 四ツ谷駅まで徒歩18分
賃貸条件
- 賃料(坪単価)
- 1,420,440円(@14,000円)
- 礼 金
- 無
- 共益費(坪単価)
- 賃料に含む(@―)
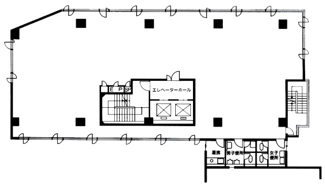
- 面 積
- 101.46坪 (335.41m²)
- 賃料+共益費(坪単価)
- 1,420,440円 (@14,000円)
- 償 却
- 賃料の1ヶ月分
- 預託金(保証金/敷金)
- 14,204,400円(10ヶ月)
- 入居可能日
- 2026年9月1日予定
- 更新料(再契約料)
- 無
- 契約期間
- 2年
物件概要
- 特 徴
- 構 造
- 鉄骨鉄筋コンクリート造/新耐震
- 物件タイプ
- 事務所
- 規 模
- 11階建
- 取引態様
- 一般媒介
- 竣 工
- 1987年10月
- 設 備
-
E V :2基、天井高:―㎜、床仕様:OAフロア、空調:個別空調、トイレ:専用 男女別 洋式
その他:機械警備
- 備 考
-
■貸室面積には、トイレ・給湯室等の面積が含まれます。 ■エントランス開放時間:月~土7:00~21:00、日祝Close ■貸主指定の保証会社と保証委託契約を締結していただきます。 ※与信状況によって預託金額が変動する場合がございます。
注) 上記の価格には、別途、消費税及び地方消費税が課されます。
消費税率が変更された場合には、以後、変更後の税率が課されることとなります。
物件情報更新日:2026-04-08
お気軽にお問合せください
