アドバンテック南青山
3階(東京都港区南青山)
アドバンテック南青山
3階(東京都港区南青山)
- 賃料(坪単価):
- 相談(@―)
- 共益費(坪単価)
- :
- 相談 (@―)
- 預託金(保証金/敷金)
- :
- 相談(―)
- 面積
- :
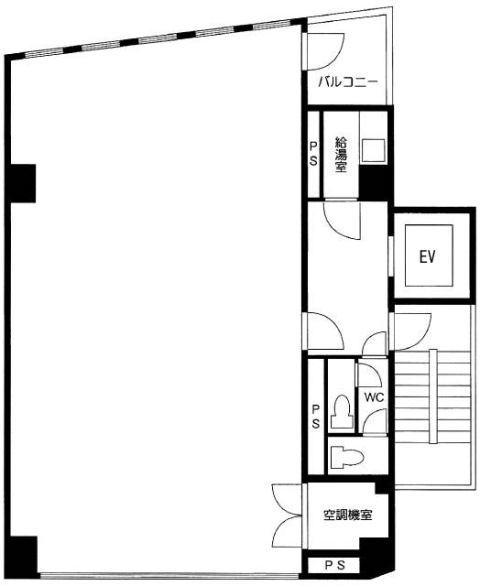
- 30.55坪 (101.00m²)
- 所在地
- :
- 東京都港区南青山2-22-19
- 最寄駅
- :
-
外苑前駅まで徒歩1分
青山一丁目駅まで徒歩6分
青山一丁目駅まで徒歩6分
青山一丁目駅まで徒歩6分
乃木坂駅まで徒歩13分
物件情報
所在地・アクセス
- 物件名
- アドバンテック南青山 3階
- 所在地
- 東京都港区南青山2-22-19
- 最寄駅
-
東京メトロ銀座線 外苑前駅まで徒歩1分
東京メトロ銀座線 青山一丁目駅まで徒歩6分
東京メトロ半蔵門線 青山一丁目駅まで徒歩6分
都営大江戸線 青山一丁目駅まで徒歩6分
東京メトロ千代田線 乃木坂駅まで徒歩13分
賃貸条件
- 賃料(坪単価)
- 相談(@―)
- 礼 金
- 相談
- 共益費(坪単価)
- 相談(@―)
- 面 積
- 30.55坪 (101.00m²)
- 賃料+共益費(坪単価)
- 相談 (@―)
- 償 却
- 相談
- 預託金(保証金/敷金)
- 相談(―)
- 入居可能日
- 相談
- 更新料(再契約料)
- 相談
- 契約期間
- 相談
物件概要
- 特 徴
- 構 造
- 鉄骨鉄筋コンクリート造
- 物件タイプ
- 事務所
- 規 模
- 地下1階付10階建
- 取引態様
- 一般媒介
- 竣 工
- 1978年7月
- 設 備
-
E V :1基(9人乗)、天井高:2500㎜、床仕様:―、空調:個別空調、トイレ: 男女共用 洋式
その他:機械警備
- 備 考
- お問い合わせください。
物件情報更新日:2026-03-31
お気軽にお問合せください
- HOME
- >
- エリアから探す
- >
- 港区
- >
- 青山
- >
- アドバンテック南青山
- >
- アドバンテック南青山 3階
