新耐震
虎ノ門タワーズオフィス
19階(東京都港区虎ノ門)
新耐震
虎ノ門タワーズオフィス
19階(東京都港区虎ノ門)
- 賃料(坪単価):
- 相談(@―)
- 共益費(坪単価)
- :
- 相談 (@―)
- 預託金(保証金/敷金)
- :
- ―(12ヶ月)
- 面積
- :
- 477.75坪 (1579.34m²)
- 所在地
- :
- 東京都港区虎ノ門4-1-28
- 最寄駅
- :
-
神谷町駅まで徒歩5分
溜池山王駅まで徒歩7分
六本木一丁目駅まで徒歩7分
虎ノ門駅まで徒歩10分
霞ヶ関駅まで徒歩15分
物件情報
所在地・アクセス
- 物件名
- 虎ノ門タワーズオフィス 19階
- 所在地
- 東京都港区虎ノ門4-1-28
- 最寄駅
-
東京メトロ日比谷線 神谷町駅まで徒歩5分
東京メトロ銀座線 溜池山王駅まで徒歩7分
東京メトロ南北線 六本木一丁目駅まで徒歩7分
東京メトロ銀座線 虎ノ門駅まで徒歩10分
東京メトロ千代田線 霞ヶ関駅まで徒歩15分
賃貸条件
- 賃料(坪単価)
- 相談(@―)
- 礼 金
- 無
- 共益費(坪単価)
- 相談(@―)
- 面 積
- 477.75坪 (1579.34m²)
- 賃料+共益費(坪単価)
- 相談 (@―)
- 償 却
- 無
- 預託金(保証金/敷金)
- ―(12ヶ月)
- 入居可能日
- 2027年1月予定
- 更新料(再契約料)
- 無
- 契約期間
- 年相談(定借)
物件概要
- 特 徴
- 構 造
- 地下:SRC造、地上:S造/新耐震
- 物件タイプ
- 事務所
- 規 模
- 地下3階付23階建
- 取引態様
- 一般媒介
- 竣 工
- 2006年8月
- 設 備
-
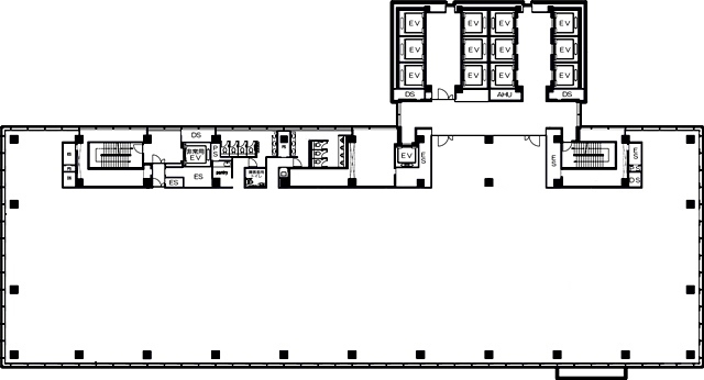
E V :16基、天井高:2800㎜、床仕様:OAフロア(H=100mm)、空調:セントラル、トイレ:専用 男女別 洋式
その他:機械警備、EV不停止機能付、駐車場設備あり
- 備 考
-
■制震構造 ■貸室面積には、EV・廊下・トイレ等共用部の面積は含まれません。 ※コア内貸室の面積(23.05坪)が含まれます。 ■カンファレンスルームあり ■床荷重:500㎏/㎡(一部800㎏/㎡) ■電気容量:50VA/㎡(75VA/㎡まで増設可能) ■机上平均照度:700Lx ■600㎜角グリッドシステム天井 ■電気温水洗浄器付トイレ ■EV⇒低層・高層階用:各6基(24人乗)、B2~1階用:2基(13人乗)、非常用:2基(24人乗・13人乗)
注) 上記の価格には、別途、消費税及び地方消費税が課されます。
消費税率が変更された場合には、以後、変更後の税率が課されることとなります。
物件情報更新日:2026-03-02
お気軽にお問合せください
現在募集中の区画
- 階数
- 面積
- 賃料
- 共益費
- 間取図
- HOME
- >
- エリアから探す
- >
- 港区
- >
- 虎ノ門・神谷町
- >
- 虎ノ門タワーズオフィス
- >
- 虎ノ門タワーズオフィス 19階
