当社貸主物件
セットアップオフィス
新耐震
グランファースト芝大門
6階(東京都港区芝大門)
当社貸主物件
セットアップオフィス
新耐震
グランファースト芝大門
6階(東京都港区芝大門)
- 賃料(坪単価):
- 3,316,200円(@30,000円)
- 共益費(坪単価)
- :
- 賃料に含む (@―)
- 預託金(保証金/敷金)
- :
- 19,897,200円(6ヶ月)
- 面積
- :
- 110.54坪 (365.44m²)
- 所在地
- :
- 東京都港区芝大門1-3-4
- 最寄駅
- :
-
大門駅まで徒歩4分
御成門駅まで徒歩5分
浜松町駅まで徒歩8分
汐留駅まで徒歩10分
神谷町駅まで徒歩13分
撮影更新日:2026年03月23日
スタッフコメント
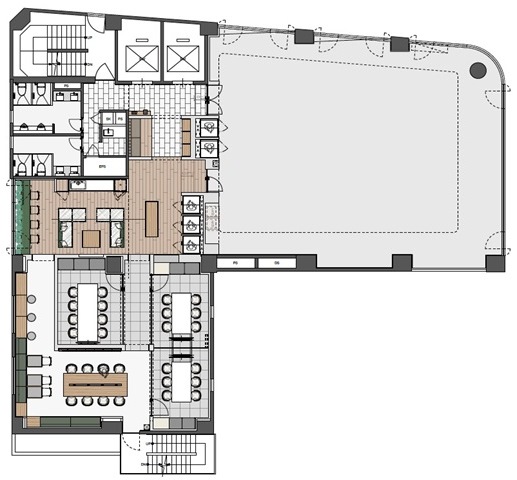
港区芝大門一丁目の第一京浜沿いに基準階110.54坪のセットアップオフィスが募集開始!基準階のレイアウトは什器付の会議室(6名用×2室、8名用×1室)、テレカンブース5台、また、ラウンジ・打ち合わせスペースが設置されております。執務室内は固定席:48~58席程度が設置可能な広さとなっております。周辺のランチ環境も良く、交通アクセスも、都営浅草線・大江戸線【大門駅】徒歩4分、都営三田線【御成門駅】徒歩5分、JR山手線・京浜東北線・東京モノレール【浜松町駅】徒歩8分と複数駅・複数路線利用可能な立地。都内で100坪クラスのセットアップオフィスをお探しの企業様、是非一度ご内覧ください! ※対面ソファ席・マルチブース2台(※マルチブース:集中、リフレッシュ、リモート会議等、様々なシーンに活用可能なブース)が設えているフロアもございます。
担当:下川 歩 支店:浜松町店 更新日:2026年4月2日
物件情報
所在地・アクセス
- 物件名
- グランファースト芝大門 6階
- 所在地
- 東京都港区芝大門1-3-4
- 最寄駅
-
都営浅草線 大門駅まで徒歩4分
都営三田線 御成門駅まで徒歩5分
JR山手線 浜松町駅まで徒歩8分
ゆりかもめ 汐留駅まで徒歩10分
東京メトロ日比谷線 神谷町駅まで徒歩13分
賃貸条件
- 賃料(坪単価)
- 3,316,200円(@30,000円)
- 礼 金
- 無
- 共益費(坪単価)
- 賃料に含む(@―)
- 面 積
- 110.54坪 (365.44m²)
- 賃料+共益費(坪単価)
- 3,316,200円 (@30,000円)
- 償 却
- 無
- 預託金(保証金/敷金)
- 19,897,200円(6ヶ月)
- 入居可能日
- 即日
- 更新料(再契約料)
- 無
- 契約期間
- 3年(定借)
物件概要
- 特 徴
- 構 造
- 鉄骨鉄筋コンクリート造/新耐震
- 物件タイプ
- 事務所
- 規 模
- 9階建
- 取引態様
- 貸主
- 竣 工
- 1988年10月
- 設 備
-
E V :2基(13人乗)、天井高:3,165mm(最高部)㎜、床仕様:OAフロア(H=50mm)※執務室のみ、空調:個別空調、トイレ:専用 男女別 洋式
その他:機械警備
- 備 考
-
■2026年3月、内装造作付きセットアップ工事完了(テレカンブース5室、執務室・会議室付) ※会議室に什器設置。※執務室に什器・備品は付きません。 ■テレビアンテナ使用不可 ■中途解約条項の挿入可能 ■契約開始より12ヶ月間解約通知不可 ■SFビルサポート株式会社と保証委託契約を締結していただきます。※与信状況によって預託金額が変動する場合がございます。
注) 上記の価格には、別途、消費税及び地方消費税が課されます。
消費税率が変更された場合には、以後、変更後の税率が課されることとなります。
物件情報更新日:2026-04-01
お気軽にお問合せください
現在募集中の区画
- 階数
- 面積
- 賃料
- 共益費
- 間取図
- HOME
- >
- エリアから探す
- >
- 港区
- >
- 浜松町・芝大門・芝公園
- >
- グランファースト芝大門
- >
- グランファースト芝大門 6階
