新耐震
みなとみらいセンタービル
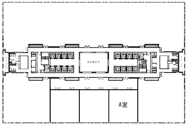
8階A室(神奈川県横浜市西区みなとみらい)
新耐震
みなとみらいセンタービル
8階A室(神奈川県横浜市西区みなとみらい)
- 賃料(坪単価):
- 相談(@―)
- 共益費(坪単価)
- :
- 賃料に含む (@―)
- 預託金(保証金/敷金)
- :
- ―(12ヶ月)
- 面積
- :
- 62.18坪 (205.58m²)
- 所在地
- :
- 神奈川県横浜市西区みなとみらい3-6-1
- 最寄駅
- :
-
みなとみらい駅まで徒歩1分
桜木町駅まで徒歩12分
桜木町駅まで徒歩12分
新高島駅まで徒歩13分
高島町駅まで徒歩15分
物件情報
所在地・アクセス
- 物件名
- みなとみらいセンタービル 8階A室
- 所在地
- 神奈川県横浜市西区みなとみらい3-6-1
- 最寄駅
-
横浜高速鉄道みなとみらい線 みなとみらい駅まで徒歩1分
JR根岸線 桜木町駅まで徒歩12分
横浜市営ブルーライン 桜木町駅まで徒歩12分
横浜高速鉄道みなとみらい線 新高島駅まで徒歩13分
横浜市営ブルーライン 高島町駅まで徒歩15分
賃貸条件
- 賃料(坪単価)
- 相談(@―)
- 礼 金
- 無
- 共益費(坪単価)
- 賃料に含む(@―)
- 面 積
- 62.18坪 (205.58m²)
- 賃料+共益費(坪単価)
- 相談 (@―)
- 償 却
- 無
- 預託金(保証金/敷金)
- ―(12ヶ月)
- 入居可能日
- 即日
- 更新料(再契約料)
- 無
- 契約期間
- 2年
物件概要
- 特 徴
- 構 造
- RC造、S造、SRC造/新耐震
- 物件タイプ
- 事務所
- 規 模
- 地下2階付21階建
- 取引態様
- 一般媒介
- 竣 工
- 2010年5月
- 設 備
-
E V :19基、天井高:2950㎜、床仕様:OAフロア(H=100mm)、空調:セントラル、トイレ:共用 男女別 洋式
その他:機械警備、有人警備、駐車場設備あり
- 備 考
-
■免振・制震構造 ■EV⇒高層・低層用:各8基(20人乗)、店舗用:1基(11人乗)、常用兼非常用:2基(17人乗) ■貸室面積には、トイレ・給湯室等の面積は含まれません。 ■床荷重:500㎏/㎡(一部800㎏/㎡) ■電気容量:70VA/㎡ ■グリッドシステム天井 ■セントラル空調コアタイム:平日8:30~19:00、土日祝休止 ※時間外空調費:5.9円/㎡/時間 ■エントランス開放時間:全日8:00~23:00 ※左記時間帯以外は通用口よりセキュリティカード利用にて入退館可能
注) 上記の価格には、別途、消費税及び地方消費税が課されます。
消費税率が変更された場合には、以後、変更後の税率が課されることとなります。
物件情報更新日:2025-12-26
お気軽にお問合せください
現在募集中の区画
- 階数
- 面積
- 賃料
- 共益費
- 間取図
- HOME
- >
- エリアから探す
- >
- 横浜エリア
- >
- 横浜市西区・神奈川区
- >
- みなとみらいセンタービル
- >
- みなとみらいセンタービル 8階A室
