新耐震
STYビル
1+2階(東京都中央区日本橋横山町)
新耐震
STYビル
1+2階(東京都中央区日本橋横山町)
- 賃料(坪単価):
- 510,015円(@16,500円)
- 共益費(坪単価)
- :
- 賃料に含む (@―)
- 預託金(保証金/敷金)
- :
- 3,060,090円(6ヶ月)
- 面積
- :
- 30.91坪 (102.19m²)
- 所在地
- :
- 東京都中央区日本橋横山町3-12
- 最寄駅
- :
-
馬喰横山駅まで徒歩1分
馬喰町駅まで徒歩3分
東日本橋駅まで徒歩4分
小伝馬町駅まで徒歩6分
浜町駅まで徒歩10分
スタッフコメント
当ビルの一番のおすすめポイントは駅の近さで、都営新宿線【馬喰横山駅】からは徒歩1分です。また、JR総武線快速【馬喰町駅】は徒歩3分、都営浅草線【東日本橋駅】徒歩4分、東京メトロ日比谷線【小伝馬町駅】徒歩6分と、複数路線を徒歩10分圏内でご利用いただくことができ、通勤や来客時に便利です。周辺は、元々問屋街として有名でしたが、近年では多くのホテルや新築オフィスビルが開発されており、おしゃれなカフェも増え、新しい人の流れが生まれているエリアです。当ビルは、すっきりとしたデザインの外観、手入れの行き届いたエントランス、いずれもとても綺麗で清潔感があり、ご来客時の印象アップに繋がります。イチオシの物件ですので、是非一度ご内見下さい。
担当:加茂 さおり 支店:小伝馬町店 更新日:2026年2月10日
物件情報
所在地・アクセス
- 物件名
- STYビル 1+2階
- 所在地
- 東京都中央区日本橋横山町3-12
- 最寄駅
-
都営新宿線 馬喰横山駅まで徒歩1分
JR総武線快速 馬喰町駅まで徒歩3分
都営浅草線 東日本橋駅まで徒歩4分
東京メトロ日比谷線 小伝馬町駅まで徒歩6分
都営新宿線 浜町駅まで徒歩10分
賃貸条件
- 賃料(坪単価)
- 510,015円(@16,500円)
- 礼 金
- 賃料の1ヶ月分
- 共益費(坪単価)
- 賃料に含む(@―)
- 面 積
- 30.91坪 (102.19m²)
- 賃料+共益費(坪単価)
- 510,015円 (@16,500円)
- 償 却
- 賃料の1ヶ月分
- 預託金(保証金/敷金)
- 3,060,090円(6ヶ月)
- 入居可能日
- 2026年6月1日予定
- 更新料(再契約料)
- 新賃料の1ヶ月分
- 契約期間
- 2年
物件概要
- 特 徴
- 構 造
- 鉄骨造/新耐震
- 物件タイプ
- 店舗・事務所
- 規 模
- 8階建
- 取引態様
- 一般媒介
- 竣 工
- 1989年3月
- 設 備
-
E V :1基、天井高:―㎜、床仕様:塩ビシート、空調:個別空調、トイレ:専用 男女共用 洋式
その他:機械警備
- 備 考
-
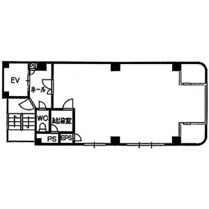
■都営浅草線【東日本橋駅】A4出口徒歩4分 ■2016年4月、EVリニューアル実施済 ■2025年、大規模修繕工事実施済 ■引渡し:事務所仕様 ■飲食店舗不可 ■解約予告:6ヶ月前 ■貸室面積⇒1階:40.93㎡(12.38坪)、2階:61.26㎡(18.53坪) ■SFビルサポート株式会社と保証委託契約を締結していただきます。 ※業種・与信状況によって預託金額が変動する場合がございます。
注) 上記の価格には、別途、消費税及び地方消費税が課されます。
消費税率が変更された場合には、以後、変更後の税率が課されることとなります。
物件情報更新日:2026-02-09
お気軽にお問合せください
現在募集中の区画
- 階数
- 面積
- 賃料
- 共益費
- 間取図
- HOME
- >
- エリアから探す
- >
- 中央区
- >
- 小伝馬町・東日本橋・日本橋浜町
- >
- STYビル
- >
- STYビル 1+2階
