
2018年のリニューアル実施により、エントランスは高級感を感じさせる明るく存在感がある開放的な空間へと生まれ変わり、執務室もデザイン性の高いスタイリッシュな空間へとリニューアルを実施しております。受付台等を設置済の為、初期コストも軽減可能な物件です。当該フロアには、専用バルコニーがございますので、特別感のある貸室空間となっております。また、屋上には入居者様専用のテラスを設置しており、リフレッシュスペースとしてご利用いただけます。物件からのアクセスは東京メトロ東西線・銀座線・都営地下鉄浅草線【日本橋駅】徒歩3分、東京の玄関口である【東京駅】へも徒歩圏内と利便性にも優れており、徒歩圏内には飲食店も複数ございますのでテイクアウトも出来てランチにも困りません。東京を縦横無尽に駆け巡る日本橋住所をビジネスの拠点にしてみませんか?ぜひお気軽にお問い合わせください。
※掲載写真とお引渡し状態が異なる場合、現況を優先させていただきます。
OVERVIEW
- 物件No.
- 1-1120
- 募集期間
- ご成約まで
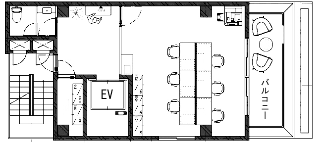
- 所在地
- 中央区日本橋
- 最寄駅
-
東京メトロ銀座線
日本橋駅 徒歩3分
東京メトロ東西線
日本橋駅 徒歩3分
東京メトロ日比谷線
茅場町駅 徒歩6分
- 面積
- 11.75坪 / 38.85㎡
- 会議室
- 無し
- 推奨人数
- 5~6人
- 構造
- 鉄骨造
- 規模
- 9階建
- 施工
- 1993年
- エレベーター
- 1基(9人乗)
- 天井の高さ
- ―
- 空調
- 個別空調
- トイレ
- あり 男女共用 洋式
- 床使用
- OAフロア
- 賃料
- ご相談
- 共益費
- 賃料に含む
- 預託金
- 賃料の5ヶ月分
- 契約期間
- 2年
- 引き渡し時期
- 2025年10月上旬予定
- その他
- 更新料:無/ 償却:無/ 礼金:無/ 契約形態:普通賃貸借契約/ その他:契約の際には、SFビルサポート株式会社と保証委託契約を締結していただきます。※与信状況によって預託金額が変動する場合がございます。/
現在オンライン内覧が可能です
オンライン内覧について詳しくはこちら
CHECK IT!
この物件についてもっと詳しく
そのまんまオフィス会員
3つのメリット
-

物件の
詳細情報の公開 -

新着物件を
お知らせ -

未公開物件を
ご紹介















