
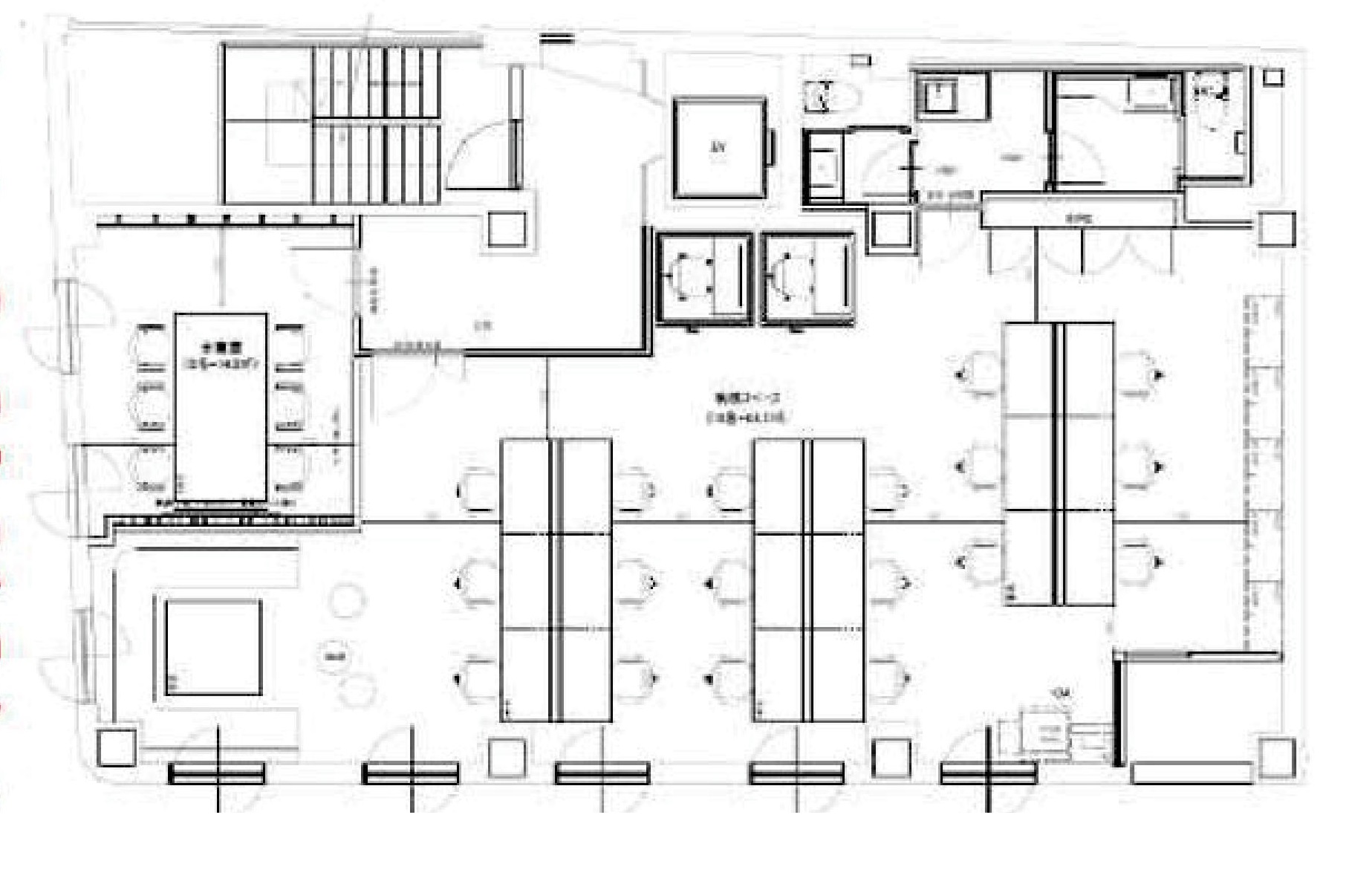
中央区八丁堀エリアにデザイン性のあるセットアップオフィスが登場しました!室内は天井を抜いて開放的で広い空間を確保。貸室内には受付と会議室等を設置。さらに、オフィスデスク、椅子も各所配置しているため、ご入居後すぐに業務を開始することが可能に。また、新たな家具の購入等、テナント様にて負担いただく事を軽減できるセットアップオフィスとなっております。是非一度現地でご体感ください。
※掲載写真とお引渡し状態が異なる場合は現況を優先させていただきます。
OVERVIEW
- 物件No.
- 1-1397
- 募集期間
- ご成約まで
- 所在地
- 中央区湊
- 最寄駅
-
JR京葉線
八丁堀駅 徒歩7分
東京メトロ有楽町線
新富町駅 徒歩9分
東京メトロ日比谷線
築地駅 徒歩12分
- 面積
- 38.29坪 / 126.59㎡
- 会議室
- 6名掛け会議室×1
- 推奨人数
- 18~25人
- 構造
- 鉄骨造
- 規模
- 8階建
- 施工
- 1989年
- エレベーター
- 1基(9人乗)
- 天井の高さ
- ―
- 空調
- 個別空調
- トイレ
- 専用 男女別 洋式
- 床使用
- ―
- 賃料
- 957,250円
- 共益費
- 賃料に含む
- 預託金
- 賃料の3ヶ月分
- 契約期間
- 2年
- 引き渡し時期
- 即日
- その他
- 更新料:新賃料の1ヶ月分/ 償却:無/ 礼金:無/ 契約形態:普通賃貸借契約/ その他:契約の際には、貸主指定の保証会社と保証委託契約を締結していただきます。/
現在オンライン内覧が可能です
オンライン内覧について詳しくはこちら
CHECK IT!
この物件についてもっと詳しく
そのまんまオフィス会員
3つのメリット
-

物件の
詳細情報の公開 -

新着物件を
お知らせ -

未公開物件を
ご紹介













