
おしゃれなカフェのような空間で「働き方改革」してみませんか?緑があしらわれた清潔感溢れるエントランスを抜け、室内に入るとコンクリート打ちっぱなし調の天井が目を惹きます。そしてなんと言っても、窓の大きさ!多さ!南向きの窓からは明るい光が差し込んで日中はまるでサンルームにいるようなぽかぽかとした陽気の中、お仕事をすることができます♪(もちろんしっかりブラインドは完備して日差し対策はできますのでご安心を!)日が沈み辺りが暗くなると、暖色系のスポットライトが温もりある雰囲気を創り、また昼間とは違う雰囲気を醸し出します。また、ガラスパーテーションで区切られた打ち合わせスペースが2つあるので、様々なシーンで機能的に使用することができます。トイレは女性には嬉しい男女別仕様!細部まで拘り抜かれたデザイナーズオフィスを是非一度ご覧下さい★
※掲載写真とお引渡し状態が異なる場合は現況を優先させていただきます。
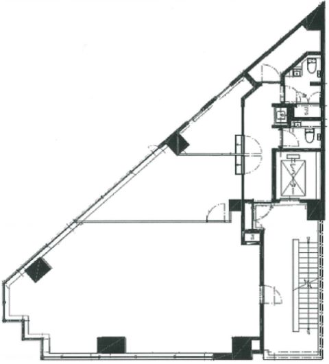
OVERVIEW
- 物件No.
- 1-1414
- 募集期間
- ご成約まで
- 所在地
- 中央区東日本橋
- 最寄駅
-
東京都交通局浅草線
東日本橋駅 徒歩2分
東京都交通局新宿線
馬喰横山駅 徒歩4分
JR総武線快速
馬喰町駅 徒歩4分
- 面積
- 32.83坪 / 108.54㎡
- 会議室
- 4名掛け会議室×1
6名掛け会議室×1
- 推奨人数
- 15~20人
- 構造
- 鉄骨鉄筋コンクリート造
- 規模
- 7階建
- 施工
- 1992年
- エレベーター
- 1基(9人乗)
- 天井の高さ
- ―
- 空調
- 個別空調
- トイレ
- 専用 男女別 洋式
- 床使用
- タイルカーペット
- 賃料
- 525,280円
- 共益費
- 賃料に含む
- 預託金
- 賃料の4ヶ月分
- 契約期間
- 2年
- 引き渡し時期
- 2025年11月下旬予定
- その他
- 更新料:新賃料の1ヶ月分/ 償却:無/ 礼金:無/ 契約形態:普通賃貸借契約/ その他:契約の際には、SFビルサポート株式会社と保証委託契約を締結していただきます。※与信状況によって預託金額が変動する場合がございます。/
現在オンライン内覧が可能です
オンライン内覧について詳しくはこちら
CHECK IT!
この物件についてもっと詳しく
そのまんまオフィス会員
3つのメリット
-

物件の
詳細情報の公開 -

新着物件を
お知らせ -

未公開物件を
ご紹介


















