
電気街の賑わいを見せながら、アニメ・漫画といった“COOL JAPAN”に惹かれ外国人観光客が多く足を運ぶ東京の代表的な観光地となった街「秋葉原」。その【秋葉原駅】より徒歩圏内でありつつ、オフィスの立ち並ぶ落ち着いたエリアに、2020年春誕生したオフィスビルです。「CLT」という木材を床材に用いて施工する新しい建築方法で施工しており、外観やエントランスにも木材を使用することで、都心にいながらも木のぬくもりを感じることができます。貸室内には、天井まで区切られた会議室を設置、ガラス張りの窓面がおしゃれな仕様で、使い勝手も◎。内装費にお金も時間もかけたくない、でもしっかり話し声が漏れない会議室が欲しいという企業様におすすめです。貸室内には、会議室・執務室ともに什器を設置。執務室には12名分のデスクを設置しているので、インターネット等を手配いただけば、すぐに仕事を始めることができます!また、エントランスは常時オートロック、エレベーターも不停止機能がかかるようになっており、日中在室する従業員様も安心です。(ご来客時は、インターホンで応対をし、エントランスの扉を開錠すると該当階にエレベーターが止まるシステムが導入されております。)ぜひ一度現地ご覧ください!
※掲載内容とお引渡し状態が異なる場合は現況を優先させていただきます。
OVERVIEW
- 物件No.
- 1-1593
- 募集期間
- ご成約まで
- 所在地
- 千代田区岩本町
- 最寄駅
-
東京都交通局新宿線
岩本町駅 徒歩3分
東京メトロ日比谷線
秋葉原駅 徒歩4分
JR山手線
秋葉原駅 徒歩7分
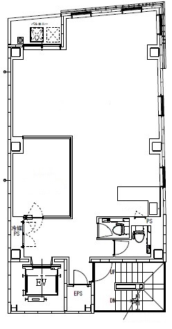
- 面積
- 21.37坪 / 70.65㎡
- 会議室
- 6名掛け会議室×1
- 推奨人数
- 10〜12人
- 構造
- 木造・鉄骨造
- 規模
- 8階建
- 施工
- 2020年
- エレベーター
- 1基
- 天井の高さ
- 2,780mm
- 空調
- 個別空調
- トイレ
- 専用 男女別 洋式
- 床使用
- ―
- 賃料
- 598,360円
- 共益費
- 賃料に含む
- 預託金
- 賃料の6ヶ月分
- 契約期間
- 2年
- 引き渡し時期
- 2026年2月7日予定
- その他
- 更新料:新賃料の1ヶ月分/ 償却:無/ 礼金:賃料の1ヶ月分/ 契約形態:普通賃貸借契約/ その他:契約の際には、貸主指定の保証会社と保証委託契約を締結していただきます。/
現在オンライン内覧が可能です
オンライン内覧について詳しくはこちら
CHECK IT!
この物件についてもっと詳しく
そのまんまオフィス会員
3つのメリット
-

物件の
詳細情報の公開 -

新着物件を
お知らせ -

未公開物件を
ご紹介
















