
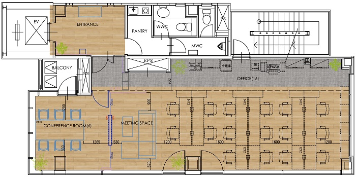
近年、再開発が進み活気のある田町駅にセットアップオフィスが登場!当ビルは「ウォーターフロント」と呼ばれるエリアに位置しており、高層ビル・高層マンション・運河の水面が見事な調和を生み出す、再開発により新たな街へと生まれ変わる芝浦エリア!室内は窓面が大きく取られており、角地に立地であることから自然採光の取れる明るい室内となっております。窓からは春には桜が綺麗に咲き、新緑から落葉までオフィスに居ながら「四季の移ろい」を感じられる空間となっております!室内造作は、6名掛けの会議室を1室設置しており、受付スペースや動線の確保がなされ、執務スペースは16~20名程度での利用が可能です!港区内で20名程度のオフィスをご検討中の企業様、ぜひお気軽にお問い合わせください。
※掲載写真は基準階のリニューアル写真となっております。写真内の什器の付属はございません。お引渡し状態が異なる場合は現況を優先させていただきます。
OVERVIEW
- 物件No.
- 2-1882
- 募集期間
- ご成約まで
- 所在地
- 港区芝浦
- 最寄駅
-
JR山手線
田町駅 徒歩8分
東京都交通局浅草線
三田駅 徒歩10分
ゆりかもめ
芝浦ふ頭駅 徒歩10分
- 面積
- 32.86坪 / 108.64㎡
- 会議室
- 6名掛け会議室×1
- 推奨人数
- 16~20人
- 構造
- 鉄骨造
- 規模
- 6階建
- 施工
- 1992年
- エレベーター
- 1基
- 天井の高さ
- ー
- 空調
- 個別空調
- トイレ
- 専用 男女別 洋式
- 床仕様
- OAフロア
- 賃料
- 788,640円
- 共益費
- 賃料に含む
- 預託金
- 賃料の5ヶ月分
- 契約期間
- 2年
- 引き渡し時期
- 2026年7月22日
- その他
- 更新料:新賃料の1ヶ月分/ 償却:賃料の1ヶ月分/ 礼金:無/ 契約形態:普通賃貸借契約/ その他:契約の際には、SFビルサポート株式会社と保証委託契約を締結していただきます。※与信状況によって預託金額が変動する場合がございます。/参考レイアウトにつき、什器の設置はございません。/
現在オンライン内覧が可能です
オンライン内覧について詳しくはこちら
CHECK IT!
この物件についてもっと詳しく
そのまんまオフィス会員
3つのメリット
-

物件の
詳細情報の公開 -

新着物件を
お知らせ -

未公開物件を
ご紹介
















