
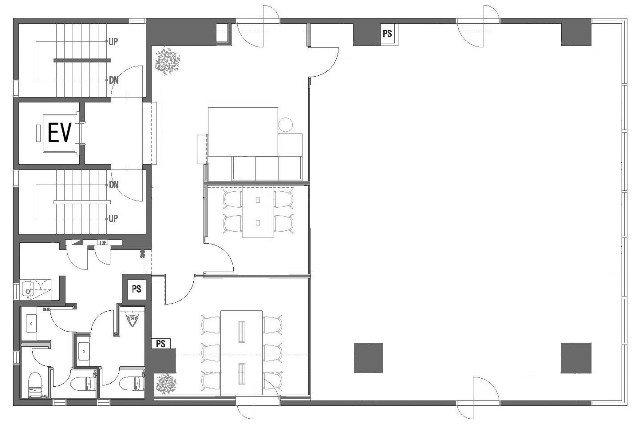
リノベーションオフィスというと、どこかカジュアルで賑やかなイメージがありませんか?本物件はグレーでまとめることで、シックで落ち着いた印象に仕上げています。2020年4月に外観・エントランス等を、2020年12月に貸室内をリニューアル工事を実施しています。ビルのエントランスの壁面は和紙をモチーフにし、日本橋エリアがもたらす歴史・文化を踏襲する和のテイストを空間に取り入れた仕様となっています。アプローチが長いことで、ご来客時もゆとりのある印象を持っていただくことができます。貸室内は「正方形の区画」が存分に生かされたレイアウト。あえてラウンジスペースは極力減らし、使い勝手の良い会議室部分にゆとりを持たせています。会議室は、フォーマルな打合せに便利な広めの部屋と、社内ミーティングやリモート会議に便利な小さめの部屋の2つがあり、どちらも天井までしっかりと区切られた独立した空間です。執務室もほぼ正方形の空間ですので、テナント様のお好みで様々なレイアウトを組むことができます。綺麗で現実的なレイアウトのオフィスに入居したいというテナント様におすすめですので、ぜひ一度現地をご覧ください。
OVERVIEW
- 物件No.
- 2-2377
- 募集期間
- ご成約まで
- 所在地
- 中央区日本橋本町
- 最寄駅
-
東京メトロ日比谷線
小伝馬町駅 徒歩3分
JR総武線快速
新日本橋駅 徒歩3分
東京メトロ銀座線
三越前駅 徒歩6分
- 面積
- 51.86坪 / 171.45㎡
- 会議室
- 4名掛け会議室×1
6名掛け会議室×1
- 推奨人数
- 20~25人
- 構造
- 鉄筋コンクリート造
- 規模
- 8階建
- 施工
- 1985年
- エレベーター
- 1基
- 天井の高さ
- ー
- 空調
- 個別空調
- トイレ
- 専用 男女別 洋式
- 床使用
- OAフロア
- 賃料
- 1,140,920円
- 共益費
- 賃料に含む
- 預託金
- ご相談
- 契約期間
- 2年
- 引き渡し時期
- 即日
- その他
- 更新料:無/ 償却:無/ 礼金:無/ 契約形態:普通賃貸借契約/ その他:契約の際には、貸主指定の保証会社と保証委託契約を締結していただくことで敷金無で入居することができます。/
360°CAMERA
現在オンライン内覧が可能です
オンライン内覧について詳しくはこちら
CHECK IT!
この物件についてもっと詳しく
そのまんまオフィス会員
3つのメリット
-

物件の
詳細情報の公開 -

新着物件を
お知らせ -

未公開物件を
ご紹介


















