
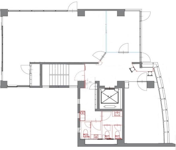
お洒落な人々が集まる神宮前2丁目エリアに、待望のセットアップオフィスが誕生いたしました!東京メトロ副都心線【北参道駅】、東京メトロ千代田線【明治神宮前駅】、JR中央線・総武線各駅停車【千駄ヶ谷駅】の3駅からアクセス可能です。外観は、木材をふんだんに使用した特徴的なデザインが目を引きます。黒を基調とした高級感あふれるエントランスから貸室フロアへ上がると、スタイリッシュなデザインの貸室が広がります。内装が既に完成されているため、内装造作の費用と手間を削減でき、且つお引越し後すぐに業務を開始することができます!また、貸室が3つに分かれているため、執務室・会議室・リフレッシュスペース等、利用用途に合わせた自由な使い方が可能です。モダンなデザイナーズオフィスでお洒落に仕事してみませんか?是非一度ご内見ください!
photographer:星野佑
OVERVIEW
- 物件No.
- 2-2480
- 募集期間
- ご成約まで
- 所在地
- 渋谷区神宮前
- 最寄駅
-
東京メトロ副都心線
北参道駅 徒歩9分
東京メトロ千代田線
明治神宮前駅 徒歩12分
JR中央線・総武線各駅停車
千駄ヶ谷駅 徒歩11分
- 面積
- 36.6坪 / 121㎡
- 会議室
- 8名掛け会議室×1
- 推奨人数
- 20~25人
- 構造
- 鉄筋コンクリート造
- 規模
- 地下1階付5階建
- 施工
- 2004年
- エレベーター
- 1基
- 天井の高さ
- ―
- 空調
- 個別空調
- トイレ
- 専用 男女別 洋式
- 床使用
- OAフロア
- 賃料
- ご相談
- 共益費
- 賃料に含む
- 預託金
- ご相談
- 契約期間
- 2年
- 引き渡し時期
- 即日
- その他
- 更契約料:新賃料の1ヶ月分/ 償却:無/ 礼金:無/ 契約形態:定期借家契約/ その他:契約の際には、SFビルサポート株式会社と保証委託契約を締結していただきます。/
現在オンライン内覧が可能です
オンライン内覧について詳しくはこちら
CHECK IT!
この物件についてもっと詳しく
そのまんまオフィス会員
3つのメリット
-

物件の
詳細情報の公開 -

新着物件を
お知らせ -

未公開物件を
ご紹介


















