
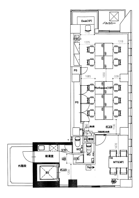
江戸通り沿いで視認性の良い、シックなグレーを基調としたスタイリッシュな外観のセットアップ物件が登場しました。駅は東京メトロ日比谷線【小伝馬町駅】徒歩1分、JR総武線快速【馬喰町駅】徒歩4分、都営新宿線【馬喰横山駅】徒歩6分!東京・丸の内などのビジネス拠点へのアクセス、また物件から100m圏内にはコンビニ・スーパー・郵便局があり利便性の良い物件です。セキュリティは機械警備が導入されており、24時間使用することが可能です。約20坪のコンパクトなオフィスですが、建物はL字型になっていて、エレベーターと水廻りはL字型の先に集約されているため執務スペースは綺麗な長方形、さらにワンフロア・ワンテナントの独立した空間を確保できています。ミーティングスペースには4名用デスクとイスが付いております。またコンパクトなオフィスながら執務室外に男女別トイレがあるのは嬉しいポイントです!是非一度ご内覧ください。お待ちしております。
※掲載内容とお引渡し状態が異なる場合は現況を優先させていただきます。
OVERVIEW
- 物件No.
- 2-2569
- 募集期間
- 成約まで
- 所在地
- 中央区日本橋小伝馬町
- 最寄駅
-
東京メトロ日比谷線
小伝馬町駅 徒歩1分
JR総武線快速
馬喰町駅 徒歩4分
東京都交通局新宿線
馬喰横山駅 徒歩6分
- 面積
- 19.51坪 / 64.5㎡
- 会議室
- 4名掛けミーティングスペース有り
- 推奨人数
- 8~10人
- 構造
- 鉄骨造
- 規模
- 10階建
- 施工
- 1996年
- エレベーター
- 1基(6人乗)
- 天井の高さ
- 2,400mm
- 空調
- 個別空調
- トイレ
- 専用 男女別 洋式
- 床使用
- タイルカーペット
- 賃料
- 331,670円
- 共益費
- 58,530円
- 預託金
- ご相談
- 契約期間
- 2年
- 引き渡し時期
- 2026年5月予定
- その他
- 更新料:新賃料の1ヶ月分/ 償却:賃料の1ヶ月分/ 礼金:無/ 契約形態:普通賃貸借契約/ その他:衛生管理費月額6,800円(別途消費税等)
現在オンライン内覧が可能です
オンライン内覧について詳しくはこちら
CHECK IT!
この物件についてもっと詳しく
そのまんまオフィス会員
3つのメリット
-

物件の
詳細情報の公開 -

新着物件を
お知らせ -

未公開物件を
ご紹介

















