
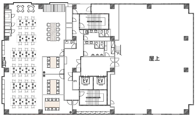
JR線【秋葉原駅】徒歩2分の立地にある免震構造の内装造作一部家具付きセットアップオフィスが募集になりました。2022年8月に外観、エントランス、共用部、貸室内、屋上テラスの大規模リニューアル実施済です。コンセプトカラーの黄色が秋葉原という街の特性が持つエネルギーや熱気を表現しております。秋葉原らしい印象的なファサードデザインにすることで視認性UPを狙い、更には利用者様の活力を高め、創造性を刺激するようデザインしております。エントランスも外観と同じく、黄色を取り入れ、エネルギーや熱量を感じさせつつも、床面(一部壁)はモルタル調とすることで、未完成さを表現し、創造力を掻き立てるように設計しております。貸室内は、内装造作一部家具付きのセットアップオフィスで受付、会議室(6名用×1・8名用×2)、執務室、トイレ、給湯スペースといった内訳で構成されております。また、屋上テラスも設置し回遊性を高めることで、各オフィス利用者の出会いや繋がりを誘発いたします。ご内覧も可能ですので、お気軽にお問合せください!
※掲載内容とお引渡し状態が異なる場合は現況を優先させていただきます。
photographer:星野 佑
OVERVIEW
- 物件No.
- 2-2572
- 募集期間
- ご成約まで
- 所在地
- 千代田区外神田
- 最寄駅
-
JR山手線
秋葉原駅 徒歩2分
JR京浜東北線
秋葉原駅 徒歩2分
JR中央線・総武線各駅停車
秋葉原駅 徒歩2分
- 面積
- 98.54坪 / 325.778㎡
- 会議室
- 6名掛け会議室×1
8名掛け会議室×2
- 推奨人数
- 40~50人
- 構造
- 鉄骨鉄筋コンクリート造
- 規模
- 地下2階付9階建
- 施工
- 2000年
- エレベーター
- 2基
- 天井の高さ
- ―
- 空調
- 個別空調
- トイレ
- 専用 男女別 洋式
- 床仕様
- OAフロア
- 賃料
- ご相談
- 共益費
- 賃料に含む
- 預託金
- 賃料の12ヶ月分
- 契約期間
- 2年
- 引き渡し時期
- 2026年11月1日予定
- その他
- 更新料:無/ 償却:無/ 礼金:無/ 契約形態:普通賃賃貸借契約/ その他:契約の際には、貸主指定の保証会社と保証委託契約を締結していただく場合がございます。/
現在オンライン内覧が可能です
オンライン内覧について詳しくはこちら
CHECK IT!
この物件についてもっと詳しく
そのまんまオフィス会員
3つのメリット
-

物件の
詳細情報の公開 -

新着物件を
お知らせ -

未公開物件を
ご紹介
おすすめ物件
-
CLOSE
【No.2-3208 THE GATE GOTANDA EAST/仲介手数料不要】ソニー通り沿い!53.8坪のセットアップオフィス!
品川区東五反田
53.8坪(177.88㎡)
-
CLOSE
【Biz Feel Ichigaya(旧:ツボヤビル)/仲介手数料不要/原状回復工事無】市ヶ谷駅徒歩1分!約30坪の会議室造作・フル什器完備のセットアップオフィスが誕生!
千代田区九段南
32.37坪(107.02㎡)
会員限定
-
CAN RENT
【No.2-3769 フォーライフオフィス東神田ビル/敷金無し・原状回復不要!Wi-Fi設備導入予定】効率を高め突き詰めたレイアウト!会議室2つ設置済みのフルセットアップオフィス!
千代田区東神田
29.46坪(97.41㎡)
会員限定


















