
本物件はJR総武線快速【馬喰町駅】徒歩3分、都営新宿線【馬喰横山駅】徒歩4分、東京メトロ日比谷線【小伝馬町駅】徒歩5分と、複数路線利用可能な立地に所在する新築オフィスビルでございます。(2024年5月竣工)外観は、ガラスカーテンウォールが特徴的な重厚感ある造りになっております。貸室内は受付を兼ねることができるエントランススペース、12名用の会議室、執務室に分かれており、入居後にかかる内装工事の負担を抑えることができます。執務室は、天井高は最大3,085mm、窓面のガラスが足元まで広がる解放感あふれる空間になります。照明は調光調色機能付きのLEDなので、集中したい時、リラックスしたい時など、時間帯やシーンによって使い分けることで、従業員のウェルビーイングに配慮することができます。また、女性トイレにはプライベートボックスも完備しており、新築オフィスならではの高い機能性を備えております。気になった方は是非一度ご覧ください。※3~6階はタイルカーペットを敷いていない状態でのお引渡しになるので、好みのデザインのものを選んで会社のカラーを表現することができます。
※掲載写真は6階の写真になります。
photographer:星野 佑
OVERVIEW
- 物件No.
- 2-3034
- 募集期間
- ご成約まで
- 所在地
- 千代田区東神田
- 最寄駅
-
JR総武線快速
馬喰町駅 徒歩3分
東京都交通局新宿線
馬喰横山駅 徒歩4分
東京メトロ日比谷線
小伝馬町駅 徒歩5分
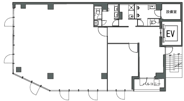
- 面積
- 47.4坪 / 156.68㎡
- 会議室
- 12名掛け会議室×1
- 推奨人数
- 20~30人
- 構造
- 鉄骨造、一部鉄筋コンクリート造
- 規模
- 地下1階付7階建
- 施工
- 2024年
- エレベーター
- 1基(13人乗)
- 天井の高さ
- ―
- 空調
- 個別空調
- トイレ
- 専用 男女別 洋式
- 床使用
- OAフロア
- 賃料
- 1,042,800円
- 共益費
- 賃料に含む
- 預託金
- 賃料の5ヶ月分
- 契約期間
- 2年
- 引き渡し時期
- 即日
- その他
- 更新料:新賃料の1ヶ月分/ 償却:無/ 礼金:無/ 契約形態:普通賃貸借契約/ その他:契約の際には、SFビルサポート株式会社と保証委託契約を締結していただきます。※与信状況によって預託金額が変動する場合がございます。/
現在オンライン内覧が可能です
オンライン内覧について詳しくはこちら
CHECK IT!
この物件についてもっと詳しく
そのまんまオフィス会員
3つのメリット
-

物件の
詳細情報の公開 -

新着物件を
お知らせ -

未公開物件を
ご紹介


















