
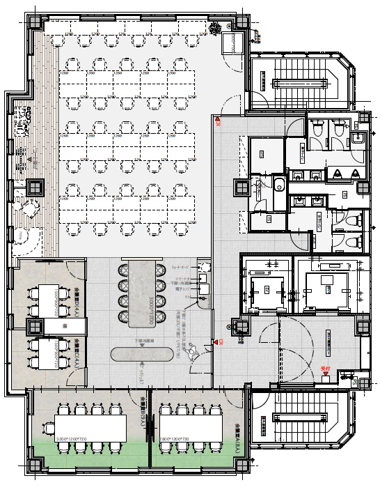
2023年8月竣工の築浅オフィスビルです!2024年9月に1階エントランスのリニューアル工事をしており、温かみのあるビルへと生まれ変わりました。東京メトロ半蔵門線・都営三田線・都営新宿線【神保町駅】まで徒歩3分、駅まで近い立地にも拘わらず周辺は閑静な場所に位置しているため、落ち着いて業務ができる環境となっています。1階のエントランスからエレベーターホールに続く扉はオートロックであり、セキュリティ面でも安心できます。執務室内にビッグテーブル設置のラウンジ、会議室は4部屋(4名様用×2、8名様×1、9名様用×1)が設置済の仕様になっているので、内装工事費用も比較的抑えることができます。社内外のミーティングが盛んで会議室を多くご利用いただく機会のある企業様におススメです。是非、一度ご内見下さい!
【リニューアル情報】
2024年9月、エントランス・3階貸室内リニューアル工事完了
2024年11月、6階・8階貸室内リニューアル工事完了
photographer:星野 佑
OVERVIEW
- 物件No.
- 2-3086
- 募集期間
- ご成約まで
- 所在地
- 千代田区神田神保町
- 最寄駅
-
東京メトロ半蔵門線
神保町駅 徒歩3分
東京都交通局新宿線
神保町駅 徒歩3分
JR中央線快速
御茶ノ水駅 徒歩9分
- 面積
- 79.27坪 / 262.05㎡
- 会議室
- 4名掛け会議室×2
8名掛け会議室×1
9名掛け会議室×1
- 推奨人数
- 30~36人
- 構造
- 鉄骨造
- 規模
- 14階建
- 施工
- 2023年
- エレベーター
- 2基(11人乗・17人乗)
- 天井の高さ
- 梁上3,285mm、梁下2,500mm
- 空調
- 個別空調
- トイレ
- 専用 男女別 洋式
- 床使用
- OAフロア(H=40mm)
- 賃料
- ご相談
- 共益費
- 賃料に含む
- 預託金
- ご相談
- 契約期間
- 2年
- 引き渡し時期
- 即日
- その他
- 更新料:無/ 償却:無/ 礼金:無/ 契約形態:普通賃貸借契約/ その他:契約の際には、貸主指定の保証会社と保証委託契約を締結していただく場合、預託金額をご相談できます。※与信状況によって預託金額が変動する場合がございます。/
360°CAMERA
現在オンライン内覧が可能です
オンライン内覧について詳しくはこちら
CHECK IT!
この物件についてもっと詳しく
そのまんまオフィス会員
3つのメリット
-

物件の
詳細情報の公開 -

新着物件を
お知らせ -

未公開物件を
ご紹介


















