
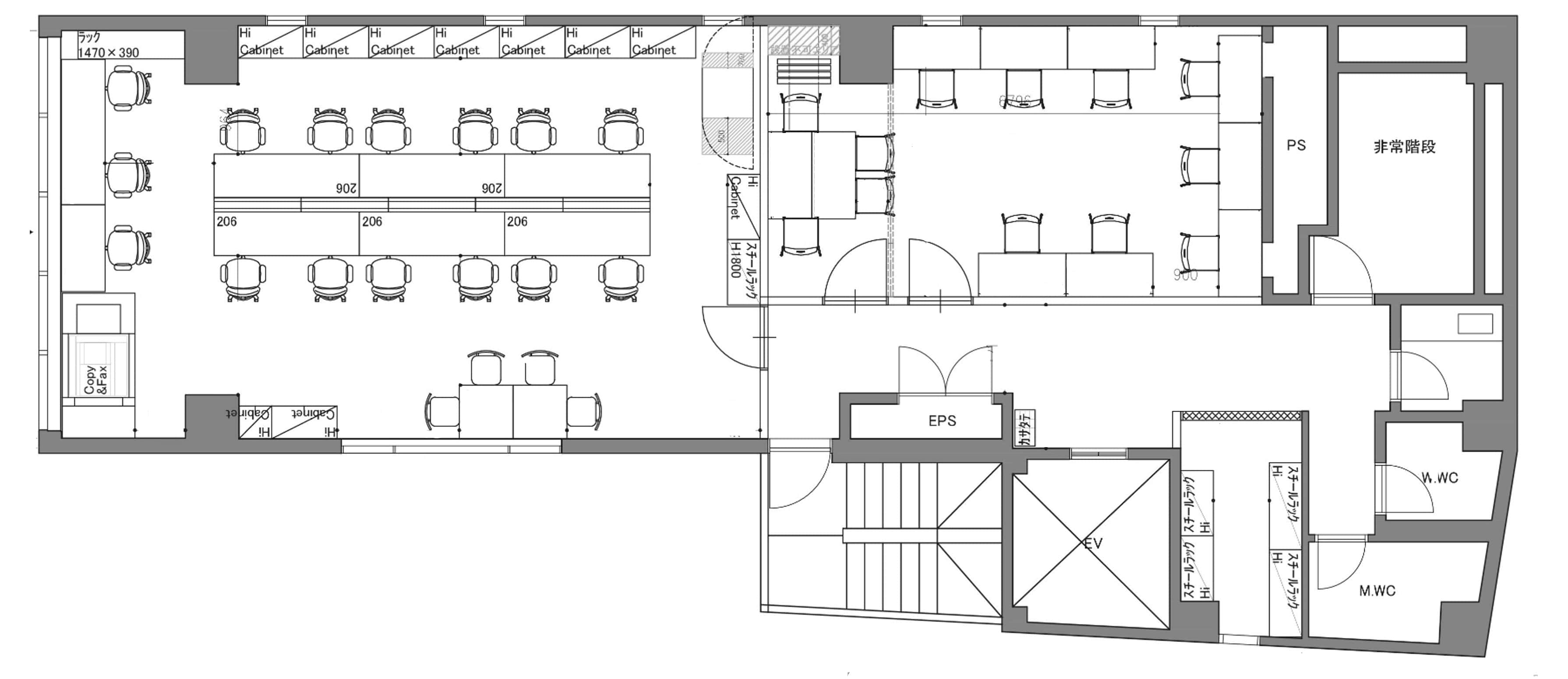
都営浅草線【浅草橋駅】まで徒歩3分、日本橋や空港へのアクセスに富んだ立地に当ビルはございます。ファサード(外観)はガラス張りとなっており、コンパクトサイズながら存在感のあるビルです。周辺環境は、オフィスビルが集中しており、老舗企業の本社ビル等が多く、様々な問屋が軒を連ねている為、趣のある街並みがございます。落ち着いた環境でお仕事されたいお客様にはピッタリの物件です。室内は会議スペースが2箇所設けられており、それぞれ、4名・8名程度収容可能。また、可動式の吊り下げ壁で間仕切られているため、状況に合わせ区画をつなげることで12人程度の会議にも対応可能です。廊下部分に収納スペースも確保されているため、書類や在庫等を抱えるお客様も安心してご利用いただけます!執務スペースは正形で幅広いレイアウトに対応が可能です。さらに、木目調のフローリングに変更した床面はデザイン性に富んでおり、フレッシュな気分でお仕事いただけます。是非一度ご内見ください!
※現況とお引渡し状態が変更となる場合がございます。その場合は現況を優先させていただきます。
OVERVIEW
- 物件No.
- 2-3112
- 募集期間
- 2024年7月下旬まで
- 所在地
- 台東区浅草橋
- 最寄駅
-
JR中央線・総武線各駅停車
浅草橋駅 徒歩3分
東京都交通局浅草線
浅草橋駅 徒歩3分
東京都交通局浅草線
蔵前駅 徒歩5分
- 面積
- 35.12坪 / 116.1㎡
- 会議室
- 4名掛け会議室×1
8名掛け会議室×1
- 推奨人数
- 15~20人
- 構造
- 鉄骨造
- 規模
- 9階建
- 施工
- 1992年
- エレベーター
- 1基
- 天井の高さ
- 2,450mm
- 空調
- 個別空調
- トイレ
- 専用 男女別 洋式
- 床使用
- タイルカーペット
- 賃料
- 456,560円
- 共益費
- 賃料に含む
- 預託金
- 賃料の8ヶ月分
- 契約期間
- ―
- 引き渡し時期
- ご相談
- その他
- 再契約料:無/ 償却:無/ 礼金:無/ 契約形態:定期建物賃貸借契約/ 契約期間:年相談/
現在オンライン内覧が可能です
オンライン内覧について詳しくはこちら
CHECK IT!
この物件についてもっと詳しく
そのまんまオフィス会員
3つのメリット
-

物件の
詳細情報の公開 -

新着物件を
お知らせ -

未公開物件を
ご紹介


















