
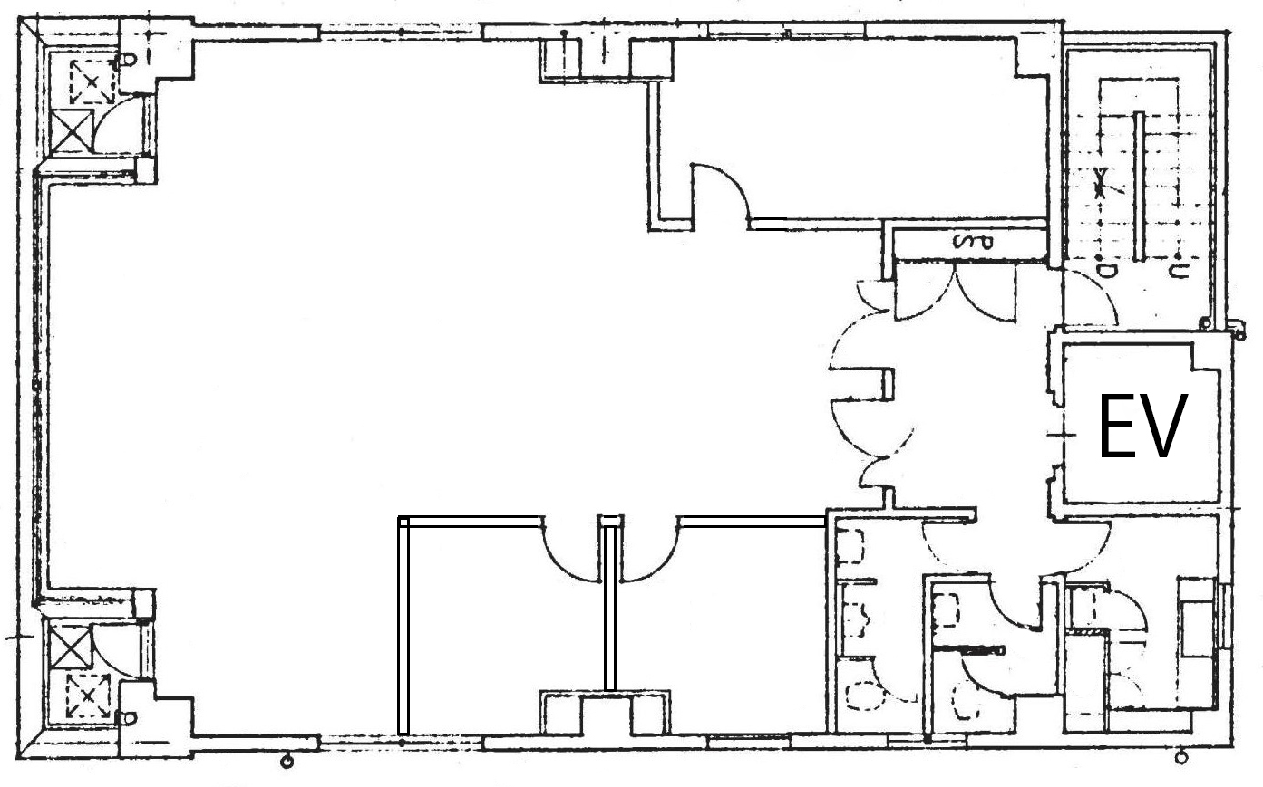
東急新横浜線・相鉄新横浜線・横浜市営地下鉄ブルーライン【新横浜駅】徒歩5分の当ビルは、共用部(トイレ・給湯・EVホール)が2024年10月にリニューアルされました。モダンで洗練されたデザインが特徴で、1フロア1テナントのプライベート空間。また4人掛けの応接室が2つとロッカールームが1つ居抜きにてご利用が可能です。これにより、ミーティングや個人の荷物管理が容易になり、ユーザー様にとって快適で機能的な環境が提供されています。ぜひ一度ご覧ください!
※添付図面は現況と状態が異なる場合がございます。また、掲載内容とお引渡し状態が異なる場合は現況を優先させていただきます。
OVERVIEW
- 物件No.
- 2-3278
- 募集期間
- ご成約まで
- 所在地
- 横浜市港北区新横浜
- 最寄駅
-
東急新横浜線
新横浜駅 徒歩5分
横浜市営地下鉄ブルーライン
新横浜駅 徒歩5分
JR横浜線
新横浜駅 徒歩7分
- 面積
- 38.97坪 / 128.83㎡
- 会議室
- 4名掛け会議室×2
倉庫(ロッカールーム)×1
- 推奨人数
- 15~20人
- 構造
- 鉄骨鉄筋コンクリート造
- 規模
- 地下1階付9階建
- 施工
- 1987年
- エレベーター
- 1基(9人乗)
- 天井の高さ
- 2,350mm
- 空調
- 個別空調
- トイレ
- 専用 男女別 洋式
- 床仕様
- OAフロア(H=50mm)
- 賃料
- 506,610円
- 共益費
- 賃料に含む
- 預託金
- 賃料の7ヶ月分
- 契約期間
- 3年
- 引き渡し時期
- ご相談
- その他
- 再契約料:無/ 礼金:無/ 償却:無/ 契約形態:定期建物賃貸借契約/ その他:契約の際には、SFビルサポート株式会社と保証委託契約を締結していただきます。 ※与信状況によって預託金額が変動する場合がございます。/
現在オンライン内覧が可能です
オンライン内覧について詳しくはこちら
CHECK IT!
この物件についてもっと詳しく
そのまんまオフィス会員
3つのメリット
-

物件の
詳細情報の公開 -

新着物件を
お知らせ -

未公開物件を
ご紹介


















