
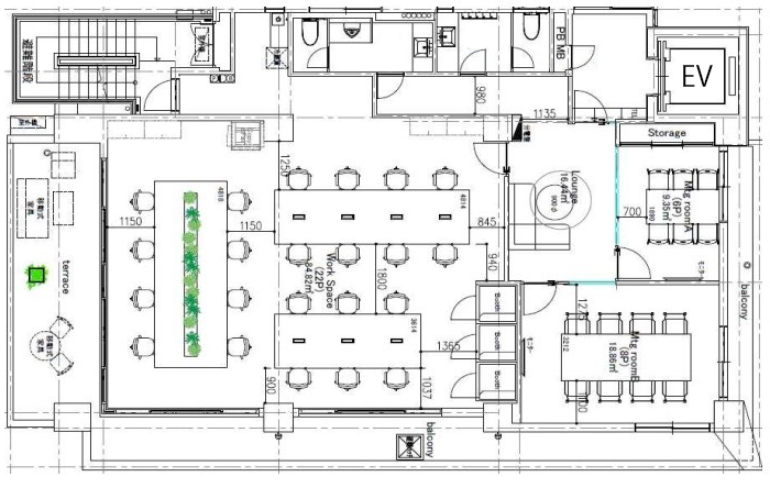
蔵前橋通りに面するビルに什器付きセットアップオフィスが登場しました!ビルの外装・エントランスは2024年12月、エレベーターは2025年5月にそれぞれにニューアル予定となっており、来客者様に良い印象を持っていただけそうです!EVホールを抜けると、余裕のある広さのラウンジが用意されお客様の待ち時間のストレスも軽減できます!6名掛け、8名掛けの会議室には机・椅子はもちろんのことモニターも備え付けとなっております!執務室スペースには22名分の椅子机に加え、テレカンブース3台を設置済み!さらに、賃貸面積に含まれていないテラススペースにもゆったりと休憩できる什器をご用意しております!窓の多い開放的な室内をぜひ一度ご覧くださいませ!
※掲載中の画像はイメージCGとなります。お引渡し状態・お引渡し可能な家具が変更となる場合がございます。その場合は現況を優先させていただきます。
OVERVIEW
- 物件No.
- 2-3295
- 募集期間
- ご成約まで
- 所在地
- 台東区台東
- 最寄駅
-
東京メトロ日比谷線
仲御徒町駅 徒歩7分
東京メトロ銀座線
末広町駅 徒歩8分
JR山手線
秋葉原駅 徒歩9分
- 面積
- 44.76坪 / 147.98㎡
- 会議室
- 6名掛け会議室×1
8名掛け会議室×1
- 推奨人数
- 18~22人
- 構造
- 鉄骨鉄筋コンクリート造
- 規模
- 地下1階付8階建
- 施工
- 1993年
- エレベーター
- 1基
- 天井の高さ
- 天井下2,400mm(OA上・一部梁有)
- 空調
- 個別空調
- トイレ
- 専用 男女別 洋式
- 床使用
- OAフロア(H=100mm)
- 賃料
- 1,119,000円
- 共益費
- 賃料に含む
- 預託金
- 賃料の10ヶ月分
- 契約期間
- ―
- 引き渡し時期
- 即日
- その他
- 更新料:無/ 償却:無/ 礼金:無/ 契約形態:普通賃貸借契約/ 契約期間:3年(以後2年更新)/ その他:契約の際には、貸主指定の保証会社と保証契約を締結していただきます。/
現在オンライン内覧が可能です
オンライン内覧について詳しくはこちら
CHECK IT!
この物件についてもっと詳しく
そのまんまオフィス会員
3つのメリット
-

物件の
詳細情報の公開 -

新着物件を
お知らせ -

未公開物件を
ご紹介











