
「五反田バレー」で注目の街「五反田」に新たなセットアップオフィスが登場しました。新宿駅、渋谷駅、品川駅、羽田空港などの主要エリアへのアクセスがよく、利便性の高いエリアです。貸室には6名用会議室×1室、テレカンブース×2台、ファミレスブースを設置。また、共用ラウンジの会議室やテレカンブース、集中作業ブース等も併せてご利用いただけます緑が溢れる優れた眺望の屋上テラスやご利用者の様々な働き方に応える共用ラウンジを完備しており、「ここで働きたい」と感じていただけるようなオフィスに仕上がりました。五反田駅周辺には飲食店も多数あり、周辺環境も含めて充実したオフィスライフが実現できる物件です。ぜひ一度ご内見ください。
【リニューアル情報】
2025年1月、貸室内・エントランス・共用トイレ・B1階共用ラウンジ・屋上テラスリニューアル工事完了
photographer:星野 佑
OVERVIEW
- 物件No.
- 2-3309
- 募集期間
- ご成約まで
- 所在地
- 品川区西五反田
- 最寄駅
-
JR山手線
五反田駅 徒歩7分
東京都交通局浅草線
五反田駅 徒歩7分
東急目黒線
不動前駅 徒歩9分
- 面積
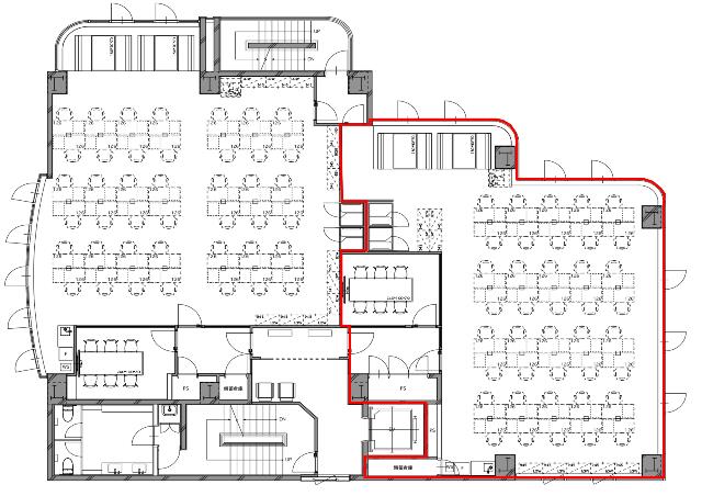
- 60.52坪 / 200.07㎡
- 会議室
- 6名掛け会議室×1
- 推奨人数
- 40~42人
- 構造
- 鉄骨鉄筋コンクリート造
- 規模
- 地下1階付4階建
- 施工
- 1990年
- エレベーター
- 1基
- 天井の高さ
- ―
- 空調
- 個別空調
- トイレ
- 共用 男女別 洋式
- 床仕様
- OAフロア
- 賃料
- 1,724,820円
- 共益費
- 賃料に含む
- 預託金
- 賃料の6ヶ月分
- 契約期間
- 2年
- 引き渡し時期
- 即日
- その他
- 更新料:無/ 償却:無/ 礼金:無/ 契約形態:普通賃貸借契約/ その他:契約の際には、SFビルサポート株式会社と保証委託契約を締結していただきます。※与信状況によって預託金額が変動する場合がございます。/貸主指定の清掃会社と貸室内の清掃契約を締結していただきます。/
360°CAMERA
現在オンライン内覧が可能です
オンライン内覧について詳しくはこちら
CHECK IT!
この物件についてもっと詳しく
そのまんまオフィス会員
3つのメリット
-

物件の
詳細情報の公開 -

新着物件を
お知らせ -

未公開物件を
ご紹介


















